In many countries, the public sector is no longer expected and/or able to fund all public goods and services. Increasingly, public bodies pursue private financing for roads, parks, social facilities, climate change mitigation and adaptation measures and social and affordable housing (from here on: ‘public infrastructure’). This increasing need for private financing mirrors the public sector’s expenditure constraints, a shift towards privatization and managerial strategies, and neoliberal policies. Also, the rise of environmentalism - which has drawn public attention to the impacts of urban development, their limitation and mitigation, fiscal decentralization towards local public bodies, local taxpayers revolts, the influence of multilateral agencies, and other variables, e.g. prosperous real estate markets (or the opposite: real estate markets in crisis) - have all contributed to this fundamental and contentious shift (see e.g. Loughlin 1981; Bailey 1990; Callies & Grant 1991; Peddle & Lewis 1996; Healey, Purdue & Ennis 1996; O’Neill 2010; Burge 2010; Smolka 2013; Crook 2016; Monk & Crook 2016; Smith & Gihring 2016; Muñoz Gielen & Lenferink 2018; Catney & Henneberry 2019; Ferm & Raco 2020 and many others). As a consequence, public value capture (PVC) instruments are currently gaining prominence in public-private relationships in urban development.
This paper addresses the debates about the effectiveness of PVC instruments in general, and of developer obligations (DOs) – a type of PVC instrument – in particular. DOs are the contributions made in exchange for land-use regulation decisions. As such, they are relevant for the commitment of private developers to the provision of urban infrastructure related to their construction sites. The definition of ‘effectiveness’ rests on how Hartmann & Spit (2015) and Muñoz Gielen & Maguregui Salas & Burón Cuadrado (2017) evaluated governance approaches to land development(1): PVC tools in general and DOs in particular are considered effective in this paper if they succeed in providing the financial revenues necessary to pay for suitable urban public infrastructure in newly-developed building areas, and if they do so without public subsidy. By addressing these debates, this paper offers useful evidence of one among several variables relevant for the broader international debate on municipal financing and the need for alternative financial sources (see e.g. Ingram & Hong, eds 2010).
This paper also addresses the effectiveness of PVC in Poland. Poland has had little success in this area to date and the need persists. The imbalance between public financial gains and losses deriving from urban development remains large. This imbalance hampers Polish municipalities in infrastructure financing (Czekiel-Świtalska 2005; Hełdak et al. 2011, 2012). The public investments required to meet public infrastructural needs in newly-developed areas, as forecasted by Polish municipalities, are not matched by the revenues from PVC tools (Śleszyński 2015; Śleszyński & Sudra 2016; Śleszyński et al. 2017; Śleszyński et al. 2021). Hence, municipalities end up investing much less than needed. Neither is this deficit of public investment compensated for by contributions from developers. These are extremely low compared to other European countries. Table 1 compares the contributions of private developers in newly-developed areas in Poland with those in three other countries: Spain, England and the Netherlands(2). The dramatic differences seen in comparison with Poland support the claim that there is both the need and room for improvement for Polish PVC tools, and certainly for DOs. At most, Polish urban developers bear the construction costs of a basic package of internal roads that are strictly necessary for their building plans, while public bodies must provide most, if not the entirety of, land for these internal roads. In addition, public bodies are forced both to finance the construction and provide land plots for almost all other public infrastructure (greenery, public facilities), on-site and off-site. The common practice in other countries that requires developers to provide social and affordable housing could be described as science fiction in Poland.
Contributions from private developers towards public infrastructure in newly-developed areas. Comparison between Spain, England, the Netherlands and Poland
| Construction costs on-site infrastructure (roads, sewerage, parks etc.) | Land for on-site public infrastructure (transferred for free or at a symbolic price) | Construction costs on-site public buildings | Land for on-site public buildings | Affordable/social housing | Off-site public infrastructure and buildings | Additional PVC | |
|---|---|---|---|---|---|---|---|
| Spain | All or almost all | Almost all the required land (average between 60% and 80% development area) | Sometimes | Almost all the required land | the region and city (e.g., in Vitoria/Gasteiz 70% of all new housing in the period 2002–2005, average for Spain in that period was 8%) | Significant contributions, in land and in money | of building About 10% plots |
| England | Almost all | Most of the required land (30–60% development area is common) | Not often | Part of the required land | Important amount | Significant contributions, mostly in money | none |
| The Netherlands | Part of these costs | Important part of the required land | None | None | Increasing amount since 2014 (max 30%) | Increasing contributions since 2014 | none |
| Poland | Almost all internal roads and sewerage serving the development area only, and occasionally a small share of the greenery. But no contributions to roads necessary for connection with city. | Occasionally, developers provide a minor share of the required land. | none | none | none | none | none |
Source: authors’ own elaboration
Sections 2, 3 and 4 provide the theoretical framework, i.e., an introduction to the basic concepts around public value capture (section 2) and an account of the debates about the effectiveness of PVCs in general and DOs in particular (sections 3 and 4). These debates concern:
- -
whether PVCs rest upon direct or indirect rationales;
- -
whether contributions are charged in exchange for land-use regulation decisions;
- -
whether DOs are negotiable;
- -
how DOs relate to land governance approaches;
- -
how DOs relate to the negotiation process with developers.
Section 3 also categorizes all PVC tools (including Polish ones) through the lens of some of these debates. Section 5 applies these reflections in order to analyse the effectiveness of PVCs in urban development in Poland; again, with a focus on DOs. Finally, section 6 summarizes the findings and introduces final general reflections.
When the value of real estate increases, this is due to one or more of the following ‘events’:
- 1)
The owner makes his own efforts and invests in the qualities or accessibility of his property.
- 2)
Others, public or private parties, make efforts and investments that positively affect the qualities of the location in which the property is located (accessibility, status, proximity to economic activities, views, etc); this may include the provision of new infrastructure or the general population and economic growth, which is the result of efforts and investments made by people other than the owner.
- 3)
Public bodies allow more profitable use and building possibilities through land-use regulation decisions of any kind(3).
When land is privately owned, if the increase in value is the result of the owner’s own efforts (i.e., event 1), there is usually not much discussion about who is the legitimate ‘owner’ of this increase: the owner him/herself. However, if the increase in value is the result of investments or decisions by others (i.e., events 2 and 3), there is often a question about who owns the incremental value. It is this very dependency on the efforts, investments and regulations of parties other than the owner that has long stimulated fundamental discussions about whether (part of) the increase in value of land due to events 2 and 3 legitimately belongs to the landowner or not. The terms used to name this increase often betray the normative nature of these discussions: unearned increment or betterment, windfalls, givings... As a consequence, there have been many proposals of taxes or other types of charges or obligations to cream off (part of) the land value increase, especially when it is the community that is responsible for it(4).
PVC policies and tools focus on capturing this value increase. The term ‘land value capture’ (LVC) refers to traditional proposals that exclude the capture of value created by efforts of the owners and of the value of the buildings (as opposed to the value of land, which if created by the efforts of others, should be captured, Smolka 2013; eds Ingram & Hong 2012). Because, in practice, it is often difficult to assess whether tools capture value increase belonging to land or to buildings, this paper uses the broader term ‘public value capture’ (PVC, thus excluding the term ‘land’) to include all instruments that capture all possible increase in the value of land and buildings, whether created by the owners or not.
This section introduces the categorization of PVC tools based on some debates about their effectiveness (Gielen, Salas & Cuadrado 2017) that are relevant for Poland(5). It is not the aim here to elaborate on previous categorizations in the literature (e.g., Smolka, 2013 and many others), but to present the assumptions that serve the analysis of the effectiveness of Polish PVC tools.
1Public bodies either use direct or indirect PVC instruments. Each of these builds on two different motivating rationales (Alterman 2012; Gielen. Sala & Cuadrado 2017).
Direct instruments seek to capture all or some of the value increase under the explicit or implicit rationale that this value increase belongs to the community and not to the landowner because he has not caused this increase (‘events’ 2 and 3 above). Direct instruments are considered wealth redistribution tools. Because of their normative and controversial character, direct tools need an explicit and detailed legislative base at the regional and/or national level. Direct tools have often led to (political) controversies and have often not been fully or sufficiently implemented. This is illustrated by the well-known British dispute over the taxation of land value increase that took place after publication of the Uthwatt report in 1942(6). A study of 14 advanced-economy countries (Australia, Austria, Canada, Finland, France, Germany, Greece, Israel, the Netherlands, Poland, Sweden, the United Kingdom and the United States) found that only three included instruments based on direct rationales (Israel, Poland and the UK) and that only one of them did actually successfully apply such an instrument (the betterment levy in Israel, Alterman 2012). Examples of what could be considered direct PVC tools in Poland are the opłata planistyczna and the opłata adiacencka(7).
However, the authors are not so pessimistic because there are also examples of countries that have successfully, or with partial success, introduced taxes based on direct rationales; the more so because many countries have been successful in introducing developer obligations (DO’s) based on direct rationales. A good example of the latter is Brazil (Gielen & Van der Krabben 2019).
Besides proposals of PVC based on a direct rationale (the community is the rightful owner of all or part of the increased value and should therefore capture it), other proposals have been put forward that are based on different, more pragmatic, ‘indirect’ rationales. This makes them indirect PVC instruments. The most common indirect rationale is that landowners and developers should internalize the costs of mitigating the impacts of their building plans; i.e., pay for the maintenance and improvement of existing public infrastructure, or pay for the new public infrastructure directly or indirectly needed to support the newly-developed (or re-developed) areas. The value of these impacts represents the social costs or compensation that the community that bears such costs can exact on the developer (Bowers 1992; Webster 1998). Proposals for indirect PVC tools do not challenge fundamental ideological principles and do not always require a detailed regulation, which make them easier to introduce than direct PVC tools. An example of indirect PVC tools in Poland is the contract between developers and the municipal roads authority (zarządca drogi), a form of DO under which developers commit to (re)build those public roads necessary for the development.
PVC tools can be charged as a periodic legal obligation (e.g., capital gains tax on land or buildings, the property tax, e.g., the Polish podatek od nieruchomości) or as a one-time condition to administrative decisions (e.g., taxes paid when land is transferred: the tax upon transfer of title, also known as stamp duty; or the land value tax(8), similar to the opłata planistyczna in Poland). Other PVC tools consist of contributions to be paid by property owners who benefit from public investment in public infrastructure, regardless of whether the owners are developing their land or not. They are often referred to as ‘betterment contributions’ or ‘charges’. One example of betterment contribution like this is the Polish opłata adiacencka which is used to charge landowners who profit from public investments in infrastructure.
So far, these PVC tools are not related to administrative decisions about land-use regulations(9). That is, they are not directly related to urban (re)development, which usually requires the modification of some sort of land-use regulation. Alternatively, contributions can be charged to the party that asks for land-use regulation decisions (usually property owners or developers) as a condition of enjoying the new, more profitable use and/or building possibilities created by these decisions(10). Note that here that public delivery consists of a public decision over land-use regulations and not any other sort of public decisions or any other form of compensation, such as public investments in infrastructure or the sale of public land. In the US, these contributions are known as exactions, but the authors follow here the more international term introduced by Alterman (2012): developer obligations (DOs).
This distinction (PVC-tools charged independently or not from land-use regulation decisions) is relevant for their effectiveness (Muñoz Gielen & van der Krabben 2019). For example, property taxes are charged on all landowners independently of land-use regulation decisions, often proportionally to the market value of their property(11), but not always proportional to their wealth: an old lady living on/off a small pension in an inherited apartment in the city centre might be required to pay the same as the rich investor who just bought the apartment next door. However, contributions charged in exchange for land-use regulation decisions (i.e., DOs), are charged on those who benefit from these decisions, right at the moment at which they dispose of liquidity (paying ability); so our old lady doesn’t have to pay. Also, DOs are often based on indirect rationales and therefore often do not require a detailed prescription in regional or national legislation(12). This relative ease in introducing DOs, together with the need for innovative funding sources for public services mentioned in section 1, has, since at least the 1970’s, stimulated a plethora of locally-inspired forms of DOs. Some of these can operate without almost any legislative authority. However, the Polish case goes against this global trend because it excludes the most powerful form of DOs: the Polish legal system does not allow conditionality around the approval of the land-use plan (miejscowy plan zagospodarowania przestrzennego, MPZP, translated as ‘local development plan’) or, where there is no such a plan, of the popular planning permit (decyzja o warunkach zabudowy, DWZ) to the developer committing in a developer agreement to make contributions (see section 5.2)(13).
Non-negotiable developer obligations (N-NDO) have statutory status, which means that they are regulated, mostly in supra-municipal legislation that prescribes precisely their scope with legal standards and categorizations(14), but sometimes also in legally-binding local (municipal) regulations and policies. Thanks to this legal prescription, they can be prescribed without negotiation, at least in theory. Generally speaking, N-NDOs have a less local character than the negotiable ones. Examples of N-NDOs are building permit fees, which puts the charge of the administrative costs of issuing these permits onto those who ask for them. Other N-NDO’s charge more than administrative costs alone; e.g., the opłaty adiacenckie in Poland (when used to charge landowners that benefit from administrative decisions that allow plot subdivision) charge a percentage of the increase in land value.
Often, N-NDOs in practice offer room for negotiation, for example because prescriptions allow for interpretation, because they are ignored, or because they are prescribed after negotiations take place. Therefore, they could also be considered as negotiated DOs (NDOs). ‘Pure’ NDOs are usually vaguely regulated in legislation.
Some NDOs are more negotiable than others. When NDOs are prescribed in legally-binding local policy (e.g., land-use plans), this policy considerably reduces the room for the negotiating parties to decide which obligations can be asked for and agreed. For example, the afore-mentioned Polish negotiated contributions between the municipal road traffic authority and the developer are formally framed because the requirements of the road authority need to fit within the road and parking prescriptions of the legally-binding local land-use plan (miejscowy plan zagospodarowania przestrzennego, MPZP), which cannot be deviated from. Also, the requirements must be directly related to the development. However, often there is some room for interpretation, especially if there is no MPZP and there are unofficial negotiations before the approval of the MPZP, or if the development is only based on ad hoc, much more popular planning permits (decyzja o warunkach zabudowy, DWZ).
When NDOs are prescribed in indicative, non-legally binding local policy(15), this policy somehow reduces the room for negotiations. But this local policy has no direct legal consequences for the rights of owners, hence municipalities can deviate from them without the need for extensive procedure, or they can just ignore them. As a consequence, the parties can decide to agree on lower obligations than prescribed in the local policy, or just to omit or add one specific new obligation.
Sometimes NDOs are not or almost not prescribed in local policy anyway, so the outcome of negotiations will depend mainly on specific circumstances and the negotiating skills of the parties involved. In this sort of NDO, the room for negotiation is the largest(16).
Public and private bodies play different roles in the different steps of land development, which are: land purchase and assembly; financing, land preparation and provision of the necessary infrastructure; land disposition. This leads to ‘active’ and ‘passive’ forms of governance in land development (Van der Krabben & Jacobs 2013; Hartmann & Spit 2015). Forms of governance can be subcategorized in order from more public and active to more private and passive: a) the nationalization of all land and public land selling, b) public land banking and public land selling, c) public-private land development, d) land readjustment and e) private land development. a) and b) include the possibility of public bodies selling land (freehold or leasehold) in its ‘raw’ state without developing it first, or instead of public bodies providing the infrastructure first and then selling serviced building plots. In a) and b) public bodies can capture the land value increase through the land price (or through a share of development profits in the case of model c), or they can prescribe in the selling contract that developers will construct the infrastructure, and, maybe, pay public bodies for other expenses. The other side of the coin is the financial risk, which may end up with a negative PVC, i.e., public bodies losing money and having to subsidize the public infrastructure.
See table 2 for an overview of the mentioned sorts of PVC tools.
Overview categorizations of public value capture instruments and Polish examples
| Taxes/charges, fees or conditions Usually require detailed regulation in legislation | Developer obligations | Public and public-private land assembly | |||
|---|---|---|---|---|---|
| Non-negotiable Require detailed regulation in legislation and often also in local policy | Negotiable Require only basic regulation in legislation | ||||
| Based on direct rationale: landowner does not deserve value increase | Charged independently from modification of land-use regulation | Podatek od nieruchomości; Opłata planistyczna; Opłaty adiacenckie, betterment charge in exchange for public investment in infrastructure; | Not many examples of this in Poland, only land-lease (użytkowanie wieczyste) or the sale of ‘raw’ urban land is common | ||
| Charged in exchange for modification of land-use regulation | Opłaty adiacenckie charged in exchange for public decision on plot subdivision and land readjustment; | ||||
| Based on indirect rationale: commonly that landowner should internalize negative externalities’ development | Charged independently from modification of land-use regulation | Podatek od nieruchomości; Non-statutory (informal negotiated) betterment charge (rare); Informal conditions to administrative decisions (rare); | |||
| Charged in exchange for modification of land-use regulation | contract between developers and the road traffic authority (zarządca drogi); Umowa urbanistyczna following the 2015 Act on Revitalisation (ustawa o rewitalizacji, so far not used in practice); Umowa urbanistyczna following the 2018 Lex developer (so far not used in practice); | contract between developers and the road traffic authority (zarządca drogi); Informal NDOs (rare); | |||
Source: authors’ own elaboration
The previous section shows that there are three variables of the institutional design of PVC tools that might influence their effectiveness: 1) the supporting rationale: direct vs indirect; 2) whether tools are charged as a condition to land-use regulation decisions or not (i.e., whether they are DOs or not); and 3) whether DOs are negotiated or not. This section further focuses on the effectiveness of DOs. Based on international comparative research, two other variables are relevant here: 1) the embedment of DOs in the governance approach to urban development, 2) and their embedment in negotiating processes (Muñoz Gielen & van der Krabben 2019).
Whether DOs are negotiable or not, in most countries their achievement depends on an agreement between the public body that tries to charge obligations, and the landowners/developers that must pay them. Most N-NDOs are compulsory in the sense that landowners cannot build if they do not contribute. But if they are not willing to build, public bodies cannot force them to contribute (except, and to a certain degree, in some types of land readjustment, in some countries, see below). This is partly why passive approaches (land readjustment and private land development, models d) and e) mentioned in section 3.4) are criticised as being ineffective: see, for example, the discussion in Spain since the 1970’s (Muñoz Gielen 2010) and in the USA in the 1960’s and 1970’s (Van der Krabben & Jacobs 2013), or the ongoing discussions in Switzerland (Lambelet & Viallon 2019) and Portugal (Morais & Correia 2019).
In land readjustment (LR) landowners share the final serviced building plots but, first, give free access to their land to allow the readjustment of properties and infrastructure provision, deliver the land needed for public infrastructure for free to the public body in charge, and pay a corresponding share of the readjustment and infrastructure costs (or alternatively deliver some serviced building plots as payment in lieu, the ‘cost-equivalent land’). Only those countries where public bodies have the statutory powers, under certain circumstances, to force reluctant landowners to work with the readjustment of their properties actually deploy LR in a significant manner, and not always (Muñoz Gielen & Mualam 2019; Muñoz Gielen & van der Krabben 2019; Zaborowski 2018). More or less successful examples include Germany (Umlegung), Spain (Reparcelación), Israel (Halukah Hadasha), Korea (Tojiguhoegjeonglisa-eob) and Turkey, where the possibility of applying ‘compulsory’ LR does not require the support of any number of landowners (Germany, Spain and Israel) or at least not of all landowners (Korea and Turkey). Here LR can diminish the dependency on agreement between public bodies and landowners, and thus offers the potential of increasing the effectiveness of DOs.
Besides LR, other land policy instruments can influence the degree of dependency and hence also the results of DOs: expropriation (also known as compulsory purchase) and pre-emption rights (also known as right of first refusal, giving municipalities first-buyer’s right). These coercive instruments may support public bodies’ strategies, influencing the degree of dependency between public and private stakeholders (if landowners do not agree to the contributions, public bodies can threaten to acquire their land). Highly relevant here is the compensation to be paid to the landowners (based on the value of the land either in its previous or future use), which derives from normative conceptualizations, standards and approaches of legislation and valuation methods (Zaborowski 2018; Dunning et al. 2019).
Summarizing, in passive forms of governance, DOs often strongly depend upon agreement with landowners and developers, although less so when there is the possibility of compulsory LR and/or cheap expropriation and pre-emption powers. Section 5 shows how this applies to Poland.
As just seen, in passive forms of governance there is always some degree of dependency between public and private bodies. Therefore, bargaining often plays a crucial role. What is relevant is whether the legislation gives public bodies the statutory powers to condition the modification or approval of a land-use plan (the first land-use regulation decision that prescribes the use and building possibilities of land, also known as ‘rezoning’ in some countries) to the developer committing in an agreement to deploy and/or pay obligations. As far as the authors know, this happens at least in England, Spain, Portugal, Italy, Brazil, Canada, Switzerland, Indonesia, Korea and NSW Australia.
This is different from conditioning the building permit (so not the previous modification of the land-use plan) to obligations without any agreement (contract) backing it. The administrative issuing of the building permit does sometimes imply a legal obligation, based on public law, to pay or realize contributions, without any agreement securing their effective implementation. Many countries show that conditioning the land-use plan (so not the building permit) to an agreement (besides and above a possible legal obligation based on public law) is relevant for the effectiveness of DOs. First because, without an agreement, non-compliance can only be enforced through administrative law (often only the withdrawal of the building permit), while, where there is an agreement, municipalities can also enforce through civil law. Second because an agreement implies that developers have had a say in the development terms and obligations (instead of public bodies unilaterally prescribing them), which increases their commitment to deploy the obligations effectively. And third because, once the land-use plan is approved, landowners are already secure about the use and building possibilities of their land. As a result of this certainty, higher expectation values are already capitalized in the market and serve as collateral. Developers can rely on land price expectations and municipalities do not have any more leverage with which to negotiate. In other words, the ulterior issuing of building permits is less relevant in the power relations between municipalities and developers, especially if there is no agreement securing the contributions (Muñoz Gielen & van der Krabben 2019).
In another group of countries (the authors know of Canada in the 1960s and the Netherlands today), national legislation allows public bodies and developers to engage in voluntary negotiations about obligations that might result in a contract. But here, if developers refuse to reach an agreement, public bodies cannot, formally speaking, refuse the approval of the land-use plan; i.e., public bodies cannot threaten not to approve the land-use plan if the developer doesn’t sign the agreement. Signing the agreement must be voluntary, i.e., it cannot be made under the threat of not approving the land-use plan (Muñoz Gielen & van der Krabben 2019).
Based on the debates about the effectiveness of PVC tools presented in the previous sections, this section analyses the Polish case. Poland is rich in PVC tools. See table 3 for an overview.
Overview of Polish public value capture tools, legal basis and proper authorities (own elaboration)
| PVC-tool | Legal basis | Proper authority in charge of implementation |
|---|---|---|
| Other than developer obligations | ||
| Land-lease of urban land (użytkowanie wieczyste) | Ustawa z dnia 23 kwietnia 1964 r. Kodeks cywilny (Civil Code), Ustawa z dnia 21 sierpnia 1997 r. o gospodarce nieruchomościami (Real Estate Management Act) | Municipalities (municipal land) State Treasury (state land) |
| Property tax (podatek od nieruchomości) | Ustawa z dnia 12 stycznia 1991 r. o podatkach i opłatach lokalnych (The Act on Local Taxes and Levies) | Municipalities |
| Planning levy (opłata planistyczna) | Ustawa z dnia 27 marca 2003 r. o planowaniu i zagospodarowaniu przestrzennym (Act on Spatial Planning and Development) | Municipalities |
| Statutory betterment charge (opłata adiacencka), charged on owners that benefit from public investments in infrastructure | Ustawa z dnia 21 sierpnia 1997 r. o gospodarce nieruchomościami (Real Estate Management Act) | Municipalities |
| Informal (negotiated) betterment charge | No legal basis | Municipalities |
| Informal conditions to administrative decisions | No legal basis | Municipalities |
| Developer obligations | ||
| Formal N-NDOs (traffic infrastructure) | Ustawa z dnia 21 marca 1985 o drogach publicznych (The Act on Public Roads) | Road traffic authorities - zarządca drogi:
|
| Formal N-NDO’s (opłata adiacencka) charged on owners that benefit from plot subdivision and land readjustment | Ustawa z dnia 21 sierpnia 1997 r. o gospodarce nieruchomościami (Real Estate Management Act) | Municipalities |
| Formal N-NDO’s in urban revitalization areas | Ustawa z dnia 9 października 2015 r. o rewitalizacji (Act on revitalization) Ustawa z dnia 27 marca 2003 r. o planowaniu i zagospodarowaniu przestrzennym (Act on Spatial Planning and Development – amendments to regulations in this Act introduced by Act on Revitalization). | Municipalities |
| Formal N-NDO’s in developments against land-use plan | Ustawa z dnia 5 lipca 2018 r. o ułatwieniach w przygotowaniu i realizacji inwestycji mieszkaniowych oraz inwestycji towarzyszących, ‘lex developer’ (Act on Facilitation of Housing Development and Accompanying Facilities) | Municipalities |
| Informal NDO’s | No legal basis | Municipalities |
Source: authors’ own elaboration
- -
Selling of public land, freehold or leasehold: the predominant form of governance in Poland is: i) public bodies selling raw land to developers, which develop it (governance approach a/b, see section 3.4), or ii) developers buying land from private owners and developing it (approach e). Public bodies, especially municipalities, only develop land if they own it already and are willing to do so, which does not happen often(17). In any case, the sale of public land under leasehold (perpetual usufruct, użytkowanie wieczyste) brings important sources of finance, especially for municipalities (Marmolejo & Plocikiewick 2012). However, for residential land, the fact that all homeowners must pay annual fees without consideration of their financial situation, does not make it very popular. A recent legal modification(18) has transformed residential leasehold into freehold property, which may be regarded as a milestone in the broader process of dismantling public land-lease in Poland.
- -
Property tax (podatek od nieruchomości): this tax provides significant revenues, often around 10% (Zaborek & Czarnecki 2018) or even up to ca. 30% (Rogalska 2016) of total municipal budgets (Czempas 2010). However, as with public land-lease, it is not very popular. An important reason for this is that it is not ad valorem, i.e., not based on the market value of properties but on plot and building surface area, regardless of location. Also, a national maximum, at a relatively low rate fixed in law, limits further its potential(19).
- -
Planning levy (opłata planistyczna): based on a direct rationale, this is charged on the transfer of the property of land made within 5 years after the land-use plan (MPZP) becomes legally binding. It is meant as a tool to charge those who profit from the land-use plan but, instead of applying as a condition to the approval of this plan (which would make a DO of it), it applies only if and when landowners transfer the land within 5 years. Often developers buy the land before the land-use plan is approved, or, if not, the original landowners deliberately wait to transfer it to developers after the 5-year period has expired. Also, it is complex to collect. Many Polish municipalities deliberately give up trying to exact any (significant) levy rate (Nelicki & Zachariasz 2008; Rumińska 2015; Śleszyński et al. 2021)(20). Poland is not unique in this. In many other countries also, similar direct instruments are not effective (Alterman 2012).
- -
Statutory betterment charge (opłata adiacencka): this levy (a share of the increase in land value) may be charged on the owners of land and buildings that benefit from public infrastructure investments. It does not provide much revenue because of several limitations (Nelicki & Zachariasz 2008) and the political sensitivity of charging existing homeowners (Rumińska 2015)(21).
Besides these formal PVC tools, some other, informal, marginal tools have been developed:
- -
Informal (negotiated) betterment charge: sometimes municipalities make clear to the developer, after the land-use plan is approved, that the municipality is not able to construct the necessary public infrastructure. Municipalities are formally responsible for public infrastructure, but no sanction exists for not constructing it. Municipalities then also make clear that they wish the developer to agree to construct the infrastructure himself. Sometimes municipalities offer a contribution towards the costs, depending on the public interest of the infrastructure. Thus, developers might just wait and nothing happens, or build the infrastructure, possibly with a public contribution. This is thus a sort of non-statutory betterment charge, i.e., a voluntary and negotiated contribution in exchange for public investment in infrastructure(22).
- -
Informal conditions to administrative decisions: there are contributions negotiated as conditions to administrative decisions that do not fit within the definition of land-use regulation decisions given in this paper(23). Hence, they cannot be defined as DOs.
- -
Formal N-NDOs (traffic infrastructure): in order to obtain a building permit (pozwolenie na budowę), developers are obliged to commit to a contract with the municipal road traffic authority (zarządca drogi) to (re)construct the public roads necessary for the development(24). If there is a MPZP, this land-use plan prescribes the required road infrastructure and its parameters, without however specifying very much, which leaves room for negotiation. If there is no MPZP, there are only vague and very flexible legal requirements about connecting the building to public roads that rule the issuance of planning permits (decyzja o warunkach zabudowy, DWZ). Anyhow, in most cases, if this form of N-NDO is applied, municipalities are allowed to require just a minimum package of infrastructure(25).
- -
Formal N-NDO’s (opłata adiacencka): this levy can be used to charge owners that profit from two sorts of public decisions on land-use regulations: decision on plot subdivision and on land readjustment(26). First, this opłata can be charged in case of an administrative decision on land subdivision (podział nieruchomości), requiring a payment of at most 30% of the incremental value delivered by this decision. As with the infrastructure based opłata (the betterment charge explained before), this tool also has many limitations and often municipalities just avoid their application (Rumińska 2015)(27). Second, this tool can also be charged in case of a public decision by the local council on land readjustment (scalenie i podział nieruchomości), which almost never occurs (see next section for more details about LR in Poland).
- -
New formal N-NDO’s: in 2015 the Act on Revitalisation (ustawa o rewitalizacji)(28) increased the opportunity to require contributions from developers in prescribed revitalization areas with a land-use plan (miejscowy plan rewitalizacji, MPR, special sort of MPZP): the land-use plan may prescribe the obligation of a contract between the municipality and the developer (umowa urbanistyczna) in which they commit to contributions. This contract is a condition for the issuance of the building permit. The contracts with the road authority mentioned earlier can also formally condition the building permit for contributions, but now the scope of contributions can be larger (more than road infrastructure, also indirectly-related public infrastructure). As of February 2021, no such plan has been approved(29). The contributions must be prescribed in the land-use plan (MPR), so, in theory, there is no room for negotiation, which makes it into an N-NDO. However, probably the practice will show, if the provision is applied, that before or during the approval procedure of the land-use plan, the contributions, along with other development conditions, will be subject to some form of negotiation (which will lack, as with the informal NDO’s nowadays, any legislative base in public law).
- -
New formal N-NDO’s: in 2018 the ‘lex developer’(30) introduced the possibility of conditioning deviations from the existing land-use plan (MPZP) to a development agreement that secures contributions. These contributions must be based on urban standards prescribed in this law, which include not only roads, but also public transport and educational facilities, and municipalities can increase these standards. There could be significant room for interpretation over defining and specifying the standards, which could make it into an NDO. As this regulation is quite new, and no example in practice is known to us, it is hard to evaluate its results so far.
- -
Informal NDOs: so far, the formal DOs are not very effective, which has stimulated informal, marginal NDO’s. There is some discretional room for negotiating DOs in exchange for approval of the land-use plan (MPZP), so municipalities sometimes use this, often at the edge of legal possibilities, to try to obtain some contributions: they decide not to adopt or modify the plan if the developer doesn’t voluntarily take the initiative to construct some infrastructure and/or donate land towards it(31). The relevance of these informal NDO’s must however be relativized because, as mentioned before, most new buildings in Poland are made possible under ad hoc planning permits (DWZ), and without land-use plans (MPZP). The decision to grant such a DWZ in practice leaves no room for municipalities to negotiate informally any contribution because applications for DWZ cannot easily be rejected.
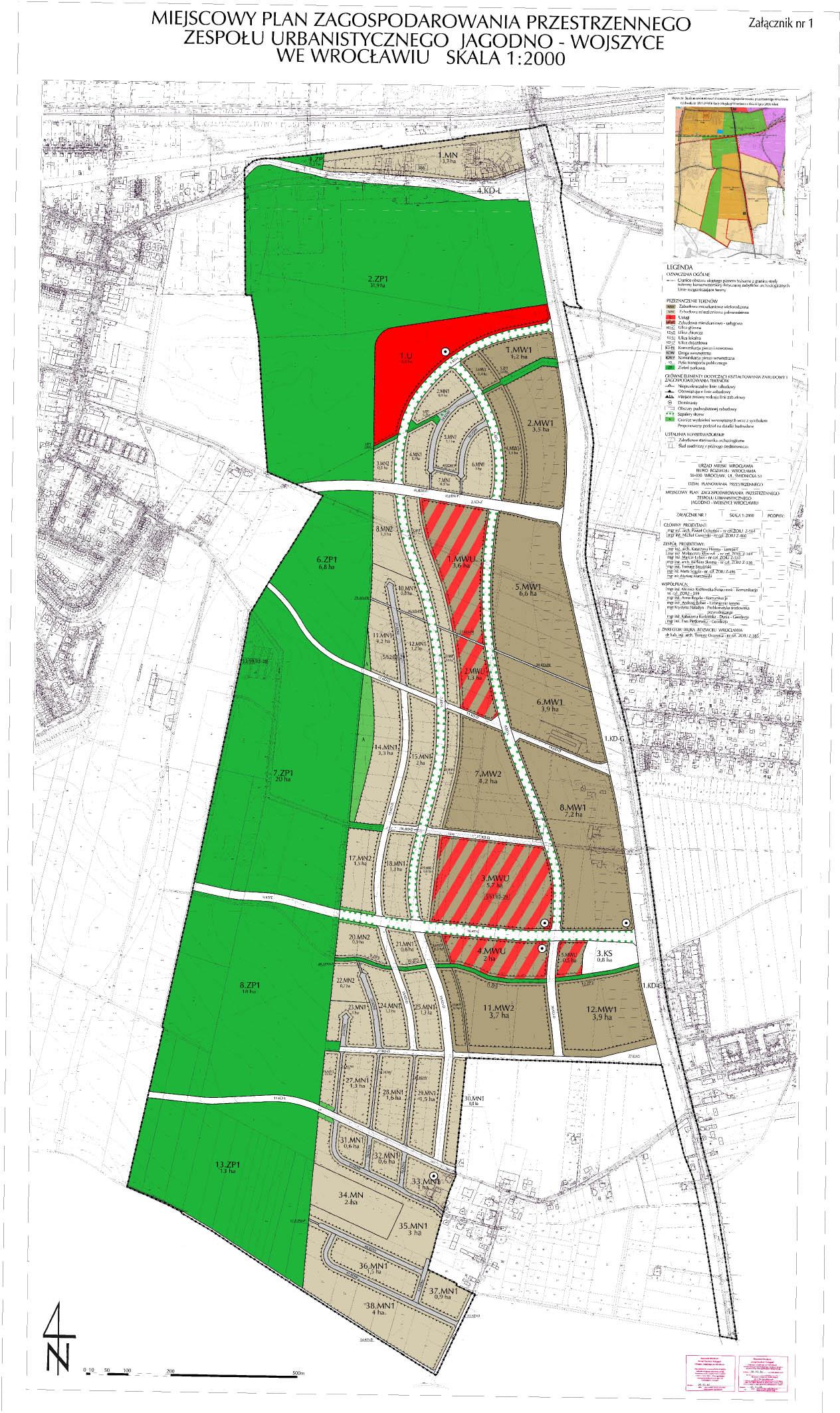
The case of Jagodno-Wojszyce in Wrocław shows the best results of the four case studies (see Figure 1). Here the only DOs that delivered some results were the obligatory contract with the road traffic authority (which ensured that the developer pays 95% of the total construction costs of the internal roads, 31.5 of 33 million PLN) and an informal NDO in exchange for approval of the land-use plan (in a unilateral letter of intent, the developer secured the free delivery of 20% of the land needed for these internal roads). The overall picture in this case shows however the dramatic imbalance between the public gains and losses: the municipality provides 80% of the land for internal roads, all the land and construction costs for the greenery, and the reconstruction costs of an adjacent principal street connecting this area with the central part of the city (53.7 million PLN). At the same time, the revenues from the planning levies were marginal; (only 36,932 PLN because the developer bought most of the land before the approval of the MPZP) and from the opłata adiacencka from land subdivision (only 12,182 PLN because most of the land was already subdivided). The municipality will need to purchase the land necessary for social or educational facilities, if not from the state agency KOWR, then from private owners. And of course, it will have to pay the construction costs of these facilities.

MPZP Jagodno Wojszyce, Wrocław (4,000 dwellings and supplementary facilities in 96.2 ha of former agricultural/greenfield area, land-use plan approved in 2009, 20% built by the end of 2020)(32)
The case of Wierzbicka in Radom also illustrates the dramatic imbalance between public gains and losses (see Figure 2). Here the only DO that has provided some results so far is the informal NDO in exchange for the approval of the land-use plan: the developer provides a very small amount of the land needed for the reconstruction of an adjacent road and less than 5% of the costs of this reconstruction. It is expected that the contract with the road traffic authority will force the developer to pay for the connection to the roads that must be reconstructed. The planning levy and the opłata adiacencka from land subdivision will not be applied and the formal infrastructure related betterment charge will, if applied, only charge a minimum share of the costs to the developer and other owners in the area.

Layout of Wierzbicka case, Radom” (shopping centre of about 6 ha built-up area in 9 ha of older shopping mall, landuse plan approved in 2019, nothing yet built by the end of 2020). Yellow stands for the land that the developer will deliver for the necessary reconstruction of adjacent roads (long dotted white lines)
Source: own elaboration on the satelite photo of geoportal.gov.pl
In the case of private land development, Polish municipalities do not dispose of coercive land policy instruments and therefore there is very high dependency on agreements with the developers and landowners in order to secure contributions.
Poland has at its disposal a land readjustment regulation (scalenie i podział nieruchomości), but it is almost never used in practice. Land readjustment may be implemented only in areas covered by a binding land-use plan (MPZP). It may be ordered by local authorities or by the landowners of at least 50% of the land (LR then becomes compulsory for the rest, although in the case of a built-up area all owners must consent). However, despite the fact that there is the possibility of compulsory LR, in practice LR is almost never used. An important problem is financing. Local authorities cannot obtain land for free, and landowners only have to pay the afore-mentioned statutory betterment charge (opłata adiacencka) afterwards, which cannot charge much. Therefore, the municipality must pay 100% compensation for the land acquired for public use, in compliance with the expropriation regulations (see further), and advance the costs of infrastructure provision without certainty about the future revenues from the betterment charge. In sum, LR is not advantageous for municipalities, and landowners prefer piecemeal urban development (preferably based on the easy to obtain planning permit DWZ) in which they obtain the maximum price for their land and do not need to coordinate actions with other landowners. Poland is, by the way, not alone in this. There are also many other countries with ineffective LR-regulations, in the sense that they do not provide any significative package of DOs(33).
Polish municipalities can exercise a pre-emption right to acquire the land, but this is only possible in a limited number of cases (buying back leased public land, historical monuments, land needed for public use and especially in designated urban regeneration areas). Also, land prices are established by the market, which includes profit expectations about the future use possibilities and leads to high compensation sums.
Finally, when public bodies want to expropriate land for public infrastructure, there are two cases. The first case is ‘soft’ infrastructure (e.g., schools, greenery, public facilities) for which necessary land can be expropriated only through the normal procedure, which is long, complex and expensive because the compensation is based on the future use and building possibilities. The only alternative is thus to negotiate with the landowners and pay high prices. The second case is road infrastructure which, as for railways and airport infrastructure, follows a special expropriation procedure, much faster than the first, but leads also to high compensation sums.
Not only Poland, but also many other countries encounter problems with high compensation sums because it is the future use that must serve as the basis for compensation; for example the Netherlands (Muñoz Gielen 2019a) and Portugal (Morais & Dias 2019). Some countries tried to prescribe the previous uses as the basis for compensation, but have not always been successful in actually lowering compensation sums(34).
Thus, Polish municipalities do not have coercive instruments to force development because neither LR, nor pre-emption rights nor expropriation are feasible and/or affordable. Hence, Polish municipalities largely depend on (formal and informal) agreements with landowners and property developers. This ends up most of the time with municipalities having to purchase the necessary land from private owners based on market prices or, if lucky, for a lower price from other public agencies that happen to own land in the development area(35).
The evidence presented in this paper suggests that Poland shows serious shortcomings when it comes to committing landowners and property developers to finance public infrastructure in newly-developed urban sites through developer obligations (DOs). In this regard, Poland deviates from the practice common in many other countries. Also, it seems that public value capture (PVC) tools other than DOs do not fill this gap which, in turn, leads to a worrying lack of proper public urban infrastructure in urban development. The authors believe that the improvement of PVC tools therefore invites further exploration and already feel confident to offer deeper insight into possible improvements to DO instruments.
As broad, and theoretically well-thought, as the set of PVC tools in Poland may seem, these tools are rather ineffective in practice. This is to say that Polish PVC tools fall very short of providing enough financial means for proper public infrastructure in newly-developed areas. The only PVC tools that, to the best knowledge of the authors, provide significant revenues are public urban land lease (użytkowanie wieczyste) and the property tax (podatek od nieruchomości). The authors believe, however, that they are still not used to their best advantage. In addition, further research is necessary to explore the potential of the sale of undeveloped land to developers, and also to explore the more active involvement of the public sphere in the development of said public land. Eventually, this could serve to determine whether there is the potential for public bodies to obtain higher revenues than now.
Landowners selling their land after rezoning should be charged a planning levy (opłata planistyczna), which, however, does not constitute any significant public revenue. All landowners profiting from public investments in infrastructure should be charged a formal betterment charge (opłata adiacencka), no matter their financial background. However, this does not render significant results either. It is unclear whether this betterment charge has any potential, given there seems to be only one country in Europe where it is successful, albeit to a limited extent: in Germany (Hobma 2014).
The same applies to the two formal DOs (i.e., the opłata adiacencka, in exchange for a public decision on plot subdivisions, and a contract between a developer and the road traffic authority in exchange for a building permit), which do not bring great results in practice. They merely provide some income that contributes to the construction costs of a basic package of road infrastructure directly connected to the development, if any.
Beside these formal tools, several informal tools have been developed, however, not a single one of them is capable of rendering satisfying results. Adding to this general failure of PVC tools, most urban development in Poland is done without land-use plans, based on ad hoc planning permissions that impose little to no requirements on developers. Usually, then, the developers of privately-owned land provide only a minimum package of the absolutely indispensable road infrastructure (if at all); oftentimes access roads are even not paved. Since 2015, two new laws have increased the possibilities to force commitments in specific circumstances (urban revitalization areas and deviations from existing land-use plan), but it remains uncertain whether these will render any result.
There are many possible explanations for the general failure of PVCs in Poland. An obvious one is the lack of any longstanding tradition of property tax and, as of today, the lack of political will to disrupt this status quo. However, there exist three more possible explanations, based on the reflections presented in sections 4 and 5. The first is that the normative base of the planning levy (opłata planistyczna), based on the rationale that the increase in land value, created by the land-use plan, belongs to the community — at least in part — and not only to the landowner, clearly collides with the conservative view of land property rights in Poland. Poland was one of the few former socialist states in Eastern Europe where collectivization of farmland failed, having encountered fierce resistance. This might explain the lack of political will to improve a planning levy that has never delivered significant revenues. Poland is not unique in this aspect; in Western Europe, North America and Australia PVC tools based on direct, more normative rationales are not very popular either, although successful examples of such tools can be found in Southern Europe, Latin America and Asia (Alterman 2012; Muñoz Gielen & van der Krabben 2019).
The second possible explanation is the lack of feasible or affordable coercive land policy tools common in many other countries, i.e., land readjustment, pre-emption rights and expropriation. This makes Polish municipalities highly dependent on particular agreements with landowners and developers. Again, this is not a uniquely Polish phenomenon.
Where Poland stands in sharp contrast to most developed countries is in its denial of the basic principles of bargaining processes in urban development: an effective development control system (urban development must follow land-use plans) combined with the possibility of approving these land-use plans contingent upon a developer’s contractual commitment to contribute. As mentioned before, a dichotomy exists in Poland in that a development is possible pursuant to a land-use plan (MPZP) or to ad hoc planning permits (DWZ). The majority of new buildings are authorized through the second option. Polish municipalities are in an unfavourable position to negotiate in general, and this is especially the case in DWZ developments. Here, the municipalities cannot easily refuse issuing them. But also, in construction undertakings performed under MPZP, Polish municipalities do not have much leverage as they cannot formally waive this plan if the developer refuses to commit to a contribution agreement.
The Polish case is extreme by international comparison. True, there are other countries where it is formally forbidden to make the approval of a land-use plan contingent upon signing of a contract (e.g., the Netherlands today, or Canada in the 1960s). However, in these cases, negotiations are perfectly normal and allowed, as long as they are voluntary. In practice, a development agreement that includes contributions is de facto a condition sine qua non for the approval of a land-use plan (Muñoz Gielen & van der Krabben 2019). Poland goes even further by formally not admitting the possibility of a voluntarily agreed development contract that is linked to the approval of a land-use plan.
Often, Polish municipalities approve the land-use plan before there is any specific development initiative, i.e., before a developer submits an application for building. Therefore, when it does happen, there is no more practical possibility of requiring a development agreement. When a developer submits an application and comes to speak with the municipality, the land-use plan is already adopted and hence the land prices have already capitalized the increase in value. Developers are comfortable with waiting precisely because the land-use plan is already approved (or, in the areas without any land-use plan, because developers expect no problems in obtaining an ad hoc planning permit, DWZ) and high expectation values are already capitalized in the market and serve as collateral. Certainly, this does not stimulate any private commitment to the implementation of public infrastructure. At this point, the only negotiation permitted is one with the municipal road authorities to provide a basic package of road infrastructure (which includes only the construction costs and not the necessary land plots) in exchange for the building permit. Municipalities must pay the construction costs of all other public infrastructure and provide all necessary plots (which they have to purchase at market prices often from the same developer who is thus profiting from the construction of public infrastructure). As the case studies showed, some informal manoeuvring room for municipalities to make this approval contingent upon additional contributions by a developer only exists if the land-use plan is yet to be approved. This situation is rarely taken advantage of to obtain some of the needed land plots for free. And even if it does happen, the contributions are rather modest.
It appears as if Poland has chosen a theoretical and ineffective approach to PVCs, instead of opting for a pragmatic approach: to use the impact of land-use plans and planning permits on land markets as a tool to restore the equilibrium in the balance of power between public and private parties in urban development; between public interest and private economic goals. Polish legislation should explore the possibilities of making the approval of a land-use plan and planning permits contingent upon a developer’s contractual commitments to contribute. The 2015 Revitalisation Act and the 2018 lex developer took some timid steps in this direction, but their application is limited to specific situations. The experience with these regulations should be studied further in order to elaborate more effective regulations and policies in the area of developer obligations.
Governance approaches to land development are sets of regulations controlling both public actions in land development and property rights to land and buildings. They are socially created and reflect ‘the influence and interests of yesterday’ in land development of today (Bromley 2000, quoted in Needham & Hartmann 2012).
The information in table 1 for Spain, England and the Netherlands is based on diverse publications (Muñoz Gielen 2010; Burón Cuadrado 2006; Gozalvo & Muñoz Gielen 2017; Muñoz Gielen & Lenferink 2018; IHS, 2019; Ministry of Housing, Communities and Local Government 2020) and professional experience of the authors. The information on Poland is based on the experience of the authors and on four Polish case studies. These cases contain some common features that make them comparable with the cases studied in the aforementioned sources for Spain, England and the Netherlands. Namely, they involve both building within a city (e.g., old industrial areas rezoned into residential) and in urban extension areas, in the so-called ‘greenfield’ developments; the development area is mostly in private hands; there is a need for investment in urban public infrastructure; the cases involve a notable land value increase due to rezoning; they have been finished or are advanced enough to allow for an evaluation of the results. There are two locations in Wrocław: Jagodno-Wojszyce (4,000 dwellings and supplementary facilities across 96.2 ha of former agricultural/natural area; land-use plan approved in 2009; 20% built by the end of 2020) and Swojczyce Południe (5,000 dwellings and supplementary facilities across 27.6 ha of former industrial area; land-use plan approved in 2010; 70% built by the end of 2020). Two more are located in Radom: Radiostacja (1,900 dwellings and supplementary facilities across 29 ha of former agricultural/natural area; land-use plan approval still in process; 5% built by the end of 2020) and Wierzbicka (shopping center of about 6 ha built up area within a 9-ha area pertaining to an earlier shopping mall; land-use plan approved in 2019, no construction executed by the end of 2020). All these cases have confirmed the previous information that the authors had about the degree to which developers in Poland contribute to public infrastructure.
Land-use regulation decisions are those that approve a rezoning, land-use plan, additional development rights, relaxation of existing land-use regulations, issuing of building permit, property subdivision or readjustment decisions. They prescribe new use and/or building possibilities for land that usually causes a rise in its economic value.
For example, a popular topic in neo-classical theory of economic rent is the idea of taxing land value increase, which, when removed, will not affect the output or the price of the buildings built on that plot of land. Variants of this argument have been advanced by Adam Smith, David Ricardo, J.S. Mill, Alfred Marshall, A. Pigou and, specially, Henry George (George 1879; Prest 1981; Oxley 2006).
As mentioned before, PVC tools in general and DOs in particular are considered effective in this paper if they succeed in providing the financial revenues necessary to pay for suitable urban public infrastructure in newly-developed building areas without public subsidy.
The Uthwatt Committee discussed the introduction of a betterment levy to capture land value increase. A 100% betterment levy was introduced in the 1947 Town and Country Planning Act, and no development could take place without payment to the Central Land Board. The levy would apply where land in private ownership was sold to developers. However, the political controversy over the new regulation became clear soon after, when the subsequent Conservative government decided to abolish it with the 1954 Planning Act. Similarly, a 40% levy introduced by Labour in 1967 was abandoned by a Conservative government in 1971. The last major attempt in England to tax development gains was the Development Land Tax Act 1976, introduced by a Labour government. This betterment tax was severely modified by the Conservative administration that came into power in 1979 and was eventually scrapped in 1985 (Oxley 2006; Clusa & Mur 2007; Alterman 2009; Catney & Henneberry 2019).
Categorizing PVC tools as direct or indirect is not always easy. The definition of a direct tool is that it is meant, or said to be meant to capture value created by ‘events’ 2 (public and private investments other than those of the owner) and 3 (public decisions on land-use regulations) with the argument that this value does not belong, or wholly belong to the landowner. As Polish legislation does not elaborate much on the fundaments and goals of the opłata planistyczna and the opłata adiacencka, the authors don’t know what they are said to be meant for. Therefore, the authors analyse them based on their design and use. On the one hand, they are used to pay for public investments in infrastructure (which fits with the indirect rationale, see further). On the other hand, they are justified because the value of land increases thanks to public investments and decisions, and moreover they capture a percentage of this value increase, irrespective of the number/value of public investments; this supports our conclusion that they are mostly based on a direct rationale.
Land value taxes charge only the increase in the value of the land, while property taxes charge the increase in the value of the land and the buildings on it.
Land-use regulation decisions are those that approve a rezoning, land-use plan, additional development rights, relaxation of existing land-use regulations, issuing of building permit, property subdivision or readjustment decisions. They prescribe new use and/or building possibilities for land that usually cause an increase in its economic value.
These contributions consist of payments by money, land, construction services, buildings, etc., and the actual moment of payment is not necessarily the same moment of approval of the land-use regulations. In fact, the payment is often deferred in time to the moment when the developer actually wants to build and therefore requests the necessary permits.
But not always, e.g., the Polish podatek od nieruchomości is mainly based on plot and building surface area, regardless of market value; i.e., the Polish property tax is not ad valorem.
An example of a Polish DO based on indirect rationales is the contract between developers and the municipal road authority (zarządca drogi) in which developers, in order to obtain a building permit, must commit to (re)build the public roads necessary for the development. This contract is not extensively regulated in law. There are also Polish DOs based on direct rationales, which therefore require extensive legal regulation. For example, the Polish opłata adiacencka which is used to charge owners that profit from two sorts of public decisions on land-use regulations: a decision on plot subdivision (podział nieruchomości gruntowej) and on land readjustment (scalenie i podział nieruchomości).
Most of the new buildings in Poland are not built on areas covered by land-use plans (miejscowy plan zagospodarowania przestrzennego, MPZP) but are made possible with ad hoc planning permits (decyzja o warunkach zabudowy, DWZ). These permits are issued both in urban areas as well as on agricultural or greenfield land: in 2012, 80% of all new buildings were erected with such permits (Kowalewski et al. 2014). These permits have thus become the main mechanism of Polish land-use control (Izdebski et al. 2007). They were theoretically envisaged to be issued only in consistently built-up areas that do not require any land-use plan because they have an easily recognizable pattern of development that can easily be continued by all new buildings. In theory, the requirements to obtain these permits are the presence of neighbouring buildings, access to a public road and technical infrastructure, as well as conformity with agricultural and forest land protection rules (Zaborowski 2018). In practice, due to the permissive legislation (both national agricultural and forest protection legislation and secondary legislation - governmental orders), judicial interpretation, and the lack of official standards of infrastructure equipment, issuing these ad hoc permits without access to a paved road, sewage system, public amenities, and located on greenfield land not adjoining buildings is common (Zaborowski 2018; Izdebski et al. 2007).
Supra-municipal legislation can be produced at the national, regional, state or provincial level, depending on the institutional structure of the public administration in the respective country.
E.g., non-legally binding master plans, or internal guidelines with no statutory value.
To our knowledge, the most elaborated literature about the role of discretion in the geographical and historical differences of developer obligations relates to England (e.g., Dunning et al, 2019 and Lord et al, 2019).
In the western parts of the country, after the Second World War, much of the land was distributed among the state, municipalities and public institutions. Even today public institutions own vast amounts of land here (e.g., Wrocław), which makes it much easier to conduct an active planning policy. In contrast, in the central and southern parts of the country, the majority of the land is private (e.g., Cracow). Warsaw is a special case where, because of the destruction of ca. 80% of the city during the war, a special governmental decree was introduced (s.c. dekret Bieruta) that nationalized all inner-city land (but not buildings). However, owning land does not automatically mean that municipalities deploy active land governance approaches, as Warsaw shows.
Ustawa z dnia 20 lipca 2018 r. o przekształceniu prawa użytkowania wieczystego gruntów zabudowanych na cele mieszkaniowe w prawo własności tych gruntów (Dz.U. 2018 poz. 1716) [Act from 20 July 2018 on the transformation of perpetual usufruct rights of built-up land for housing purposes in freehold ownership of this land].
There are examples of countries in which property tax provides higher revenues (e.g., the US -Sjoquist & Stephenson 2010 and Spain - Muñoz Gielen, 2019b) or lower revenues (e.g., the Netherlands), related to the total municipal budget (Muñoz Gielen, 2019a).
The four studied cases confirm the marginal character of the revenues generated by the planning levy.
The four studied cases confirm this: or they did not see the use of this statutory betterment charge, or its revenues are not expected to be relevant.
Of the four studied cases, only in one case could this informal betterment charge possibly have been used to make the developer construct a small park.
For example, a municipality prescribes one-way circulation in the only road that connects the city to a large shopping centre so long as its owner does not voluntarily contribute to improving this road. Another example is when developers must compensate for cut down trees by planting new trees in public spaces; therefore, the developers must ask the greenery department of the municipality for permission to plant new trees in public spaces; then, the greenery department asks the developer to pay for other improvements in these public spaces or to pay for overhead costs (e.g., greenery design). These sorts of informal conditions to administrative decisions are rare. None of the four studied cases showed it.
The formal sequence is that the road traffic authority must first certify the connection to a public road and, if such a connection does not exist or is insufficient, the road authority will only certify this provided it has an agreement with the developer. The negotiations and the sealing of the agreement might take place before the issuance of the planning permit (decyzja o warunkach zabudowy, DWZ) if there is no MPZP, or after the approval of the MPZP but before the issuance of the building permit. In any case, the certification of the road authority is needed to obtain the building permit, which implies that the contract must be ready before. This provision is based on art. 16 of the Public Roads Act, 1985 (Ustawa z dnia 21 marca 1985 r. o drogach publicznych; t.j. Dz.U. 2020 poz. 470, ze zm.).
In the four studied cases, all of them developed under a MPZP, this tool was used to make sure that the developer pays most of the construction costs of internal roads, if there are such, with a contribution from the municipality towards those streets that are also relevant for the rest of the city. However, most of the necessary land for these roads, if not all, was or will be delivered by public bodies. In smaller developments, made possible with a planning permit (DWZ), the results are even worse: they often do not have real access to the infrastructure (no sewage, no road). The road may be just a theoretical one (not paved, just drawn on a plan).
So, in total, there are three different sorts of opłata adiacencka: charged on owners that profit from 1) land-subdivision, 2) land-readjustment and from 3) public investments in infrastructure. The third one is the infrastructure-related betterment charge and has been explained before.
It can be levied only in the case of a land subdivision made according to a valid land-use plan (MPZP), and only if landowners apply for it. It was applied in only one of the four studied cases and it delivered a negligible amount of money.
Ustawa z dnia 9 października 2015 r. o rewitalizacji (Dz.U. 2015 poz. 1777) [Act from 9 October 2015 on revitalization], which introduced article 37i into the 2015 Act on planning and spatial development.
Ryś 2020 and own sources about the cities running pilot implementation of this Act on revitalization (Wałbrzych, Łódź and Bytom).
Ustawa z dnia 5 lipca 2018 r. o ułatwieniach w przygotowaniu i realizacji inwestycji mieszkaniowych oraz inwestycji towarzyszących [Act on Facilitation of Housing Development and Accompanying Facilities]
Here problems might arise when municipalities include such contributions in contracts because they easily can be fought in the courts (Prejs 2017), so developers must provide the infrastructure before the approval of the MPZP or municipalities must approve the MPZP and trust that the developer will indeed construct the infrastructure afterwards. This means that often these informal NDOs are not agreed on paper, but only orally or in a unilateral letter of intent from the developer.
LEGEND: OZNACZENIA OGÓLNE – GENERAL MARKINGS, Granice obszaru objętego planem tożsame z granicą strefy ochrony konserwatorskiej zabytków archeologicznych – Boundaries of plan area identical with boundaries of conservation protection zone for archeological heritage, Linie rozgraniczające tereny – Boundaries of areas, PRZEZNACZENIE TERENÓW – LAND USE, Zabudowa mieszkaniowa wielorodzinna – Multifamily housing, Zabudowa mieszkaniowa jednorodzinna – Single-family housing, Usługi – Service facilities, Zabudowa mieszkaniowo-usługowa – Residential and service buildings, Ulica główna – Principal street, Ulica lokalna – Local street, Ulica dojazdowa – Access street, Komunikacja piesza i rowerowa – Walking and cycling communication, Droga wewnętrzna – Inner street, Komunikacja piesza wewnętrzna – Inner walking communication, Pętla transportu publicznego – Public transport terminal, Zieleń parkowa – Parks, GŁÓWNE ELEMENTY DOTYCZĄCY KSZTAŁTOWANIA ZABUDOWY I ZAGOSPODAROWANIA TERENÓW – MAIN ELEMENTS CONCERNING DEVELOPMENTS, Nieprzekraczalne linie zabudowy – Building restriction lines, Obowiązujące linie zabudowy – Mandatory building lines, Miejsce zmiany rodzaju linii zabudowy – Point of building line kind change, Dominanty – Dominant elements, Obszary podwyższonej zabudowy – Areas of higher-rise buildings, Szpalery drzew – lines of trees, Granice wydzieleń wewnętrznych wraz z symbolem – Boundaries of inner separate areas and its symbols, Proponowany podział na działki budowlane – Proposed building plot subdivision, - USTALENIA KONSERWATORSKIE - CONSERVATION REGULATIONS, Zabytkowe stanowiska archeologiczne – Historic archeological sites, Ślad osadniczy z późnego średniowiecza – Late medieval settlement trace.
For example, in Israel, properties can be compulsorily readjusted and municipalities often proceed with this. However, there is no legal provision (neither within the LR-regulation nor outside of it) that obliges landowners to provide the infrastructure or pay for it. As a consequence, after the readjustment of properties and the delivery of the property title of part of the land to the municipality, often the infrastructure is not provided so the development does not take place. Therefore, municipalities seek agreement with landowners or developers representing them in order to finance the public infrastructure (Muñoz Gielen & Mualam 2019). Turkey also has an LR-regulation which, until the 1980s, was used frequently, but it allowed only contributions for on-site, ‘hard’ infrastructure not exceeding 40% of the development area and excluding the costs of infrastructure provision. Consequently, since the 1990s, municipalities prefer large-scale developments to follow a straight private sector-led approach, while LR is still applied mostly in smaller developments (Sense Turk & Belgin Gumru 2019). Korea had a well-functioning LR in the reconstruction period after the Korean war (1962–1983), but this was abandoned because it allowed only for the costs of direct necessary public infrastructure and did not allow additional value capture (e.g. no social/affordable housing). Since then, municipalities prefer, as in Turkey, a straight private sector-led approach (Kresse et al. 2019). Switzerland has a totally voluntary LR-regulation in place that does not support PVC (except in the Vaud canton; Lambelet & Viallon 2019). Portugal has had an LR-regulation since 1999 (Perequaçāo) that includes the statutory possibility of compulsory application but, in practice, the consent of all landowners is needed, which severely hampers its implementation (Morais de Sá & Dias Correia 2019). Colombia has had an LR-regulation since 1997, but it is almost never applied in practice, despite the possibility of compulsory readjustment where the owners of at least 51% of the land support it.
until the 1980s, in Italy, the compensation in case of expropriation was based on its previous use, but, since then, judicial scrutiny has brought paid compensation amounts closer to the future use value (Pogliani 2019). In 2007, the Spanish government, pursuing an effective (i.e., cheap and excluding speculative values) expropriation, prescribed that compensation sums must be based on former uses, but it is not yet clear whether this provision will endure judicial scrutiny (Muñoz Gielen & Lora-Tamayo Vallvé 2018).
This was the situation in the case studies. Only in the Jagodno-Wojszyce case in Wrocław did the developer hand over some land for free (20% of the plots needed for internal roads).