Powiśle – one of the most central district of Warsaw, picturesquely situated on the left bank of the Vistula River, located 10 minutes walking distance from the Old Town, well-communicated for walking and cycling, has great potential as a space for exciting events and leisure activities of the capital’s cultural life. The biggest obstacle for the implementation of such a function/integration with the city was built in the 70’s last century thoroughfare route running along the bank of the Vistula River, making the quay of the river a dead urban tissue. This way for years the left bank of the Vistula River was effectively cut-off for the public life of the city. A key theme for discussion on the future role of this area was the issue of a city inverted from the river, or otherwise restore the river to the city with its social functions. In 2003 the mayor of the capital decided to build a centre devoted to science above a newly completed tunnel covering nearly 1 km of Wisłostrada. In December 2005, an open international architectural competition for the design of the center building was decided. The winner was RAr-2 Laboratory of Architekture, Jan Kubec. The jury appreciated the way in which the authors used the location of the facility: both its architecture and the shape of the park on the roof are closely related to the terrain and the Vistula landscape. Completed in 2012, with an area of over 21,000 m2 and an accompanying nearly two-hectare Discovery Park, the Copernicus Science Centre is currently one of the largest institutions of its type in Europe. Since 2018, the Center has been part of a representative boulevard being built along the river. On an urban scale, it is the culmination of a unique complex of urban spaces with a cultural, recreational and sports character. Making riverside areas accessible to residents is a global trend, but even against this background, the Warsaw project is unique; due to the proximity of Krakowskie Przedmieście and the Old Town on one side and Port Praski and the National Stadium on the other.
The author works as an architect and academic lecturer at the Faculty of Architecture of Silesian Technical University in Gliwice. This institutional background has, to a large extent, defined the narrative perspective proposed in the article. Throughout all his career as an architect and through over 30 years of lecturing the author has maintained a clear sense of the complementary relationship between theory and practice. This stems from his conviction that in each enterprise theory and practice – with their unique limitations and requirements – inform and complement each other. The work of an architect, both -professional and academic – is created around the model of a laboratory where theory and practice connect.
Studio RAr-2 Laboratory of Architecture, Jan Kubec, cooperating closely with the Faculty of Architecture in Gliwice defined the project “Research by Design – Urbanism without Dogma” twenty years ago to facilitate permanent performance of research in urban revitalisation of certain parts of European cities. Through this period of time teams consisting of architects and experts in technical and fine arts as well as students have created a set of concepts mainly based on the hypotheses included in the competition designs in which the notion of landscape and the use of nature in architectonic design constitute their crucial elements. Research by Design has been used as a method of characterisation of a design as scientific activity.
The article presents practical methodology of implementation of designing within spatial studies [1–5]. The project research includes both the research study and the process of creating knowledge occurring within the design [6–9]. Frequently the research process commences with the research question, moving through methodological reasoning and subsequently reaching a new, true or potentially true answer or solution. Research by design suggests a somewhat contrary practice in which research may be generated by the design – it may move from a proposal, model or experiment to generalisation and rationalisation through conscious exposure of rules regarding the object of the research process – the nomothetical studies [10]. Recently a working group led by the research committee EAAE (European Association of Architectonic Education) has attempted to define research by design: “design research signifies any questions in which a design constitutes a significant part of the research process. In the research the architectonic design process creates a path leading to new observations, knowledge, practices and products. Research by design generates critical inquiries through design works and it may involve realised designs, a proposal, possible realia and alternatives. Research by design provides the form of results and discourse typical for interdisciplinary practice, both verbal and non-verbal, which makes it questionable, available and useful for peers and other individuals. Research in the designing stage is verified by mutual evaluation of expert panels who jointly possess the scope of disciplinary competences required for the task in question” [11].
While discussing the broad spectre of definitions of research through, around and for design as well as specific experiences of individual design studios and research designs one may formulate a new definition of research by (or through) design: “Research through design is a method which uses a design to study spatial solutions for a definite area adjusting the designing process constituting of pre-design, design and post-design stage thus providing philosophical and normative basis for the designing process allowing for examination of the features and issues of a given location and for testing of its (spatial) potential creating freedom of venturing into an uncharted territory with proposal and providing new observations and knowledge both interesting and useful for a wide group of recipient” [12].
This definition aims at unification of the perspective of research on the basis of design theory yet simultaneously taking into consideration the ambiguous character of the subject it is difficult to formulate a definition accommodating a wide spectre of perspectives assumed by multiple scholars and practitioners. The main question here is how research could be generated thanks to the designing process and new knowledge could be gathered with the use of methodology and designing processes. Research by design constitutes a type of academic research within the frames of which a design as a method of research is studied [13].
Some of the parti pris that underlined the basic theme of this article may be gleaned from the following excerpt from Kenneth Frampton’s book: Studies in Tectonic Culture:
“…Situated at the interface of culture and nature, building is as much about the Aristotelian air, earth, fire and water. It is about the Semperian elements of earthwork, hearth, roofwork and membrane. It thus addresses itself as much to the earth as to the built. Close to agriculture, its task is to modify the earth’s surface in such a way as to take care of it, Heidegger’s concept of Gelassenheit or letting be. Hence the notion of building the site, in Mario Botta’s memorable phrase, is of greater import than the creation of free-standing objects, and in this regard building is as much about the topos as it is about technique. Furthermore, despite the privatization of modern society, architecture, as opposed to building, tends to favor the space of public appearance rather than privacy of the Domus. At the same time, it is as much about place-making and the passage of time as it is about space and form. Light, water, wind, and weathering, these are the agents by which it is consummated. In as much as its continuity transcends mortality, building provides the basic for life and culture. In this sense, it is neither high art nor high technology. To the extent that it defies time, it is anachronistic by definition. Duration and durability are its ultimate values. In the last analysis it has nothing to do with immediacy and everything to do with the unsayable. What was it Luis Barragan said? All architecture which does not express serenity fails in its spiritual mission. The task of our time is to combine vitality with calm” [14].
He rightly understood the concept of tectonic culture as introducing an alternative history of architecture, based not on the formal concerns of the art historian but on the poetics of construction and the problems of making. Returning to architecture’s ancient roots in the poetics of construction and in the discovery of construction, Frampton explored the emergence of the concept of tectonics and its complement, stereotomy, at the dawn of the Enlightenment. More recently, he has noted that by the late 1980s he had come to realize that the idea of critical regionalism was too fragile on its own to generate and sustain resistance to scenographic postmodernism, and that the concept of tectonic culture could provide a stronger and deeper foothold in the history of the discipline. This is certainly one of the main reasons why tectonic culture has proved so influential on contemporary architectural practice.
Despite visible changes in the direction pursued by the designs of RAr-2 Laboratory of Architecture studio within the last twenty five years (1999–2024) two recurring themes exist. It might even be said that certain type of grammar, a developing language exists, which reveals new possibilities of recording space in designs created one after another. Architecture created by RAr-2 Laboratory of Architecture seems to deal with questions of matter, perception, geometry and abstraction. There are even recurring ideas connected with structures of nature as possible inspiration. Design proposals are the result of various formal manipulations that have their genesis in nature: its geometry, structure and ways of functioning. RAr-2 uses nature in various ways to build architecture. Sometimes it is the topographical shape of the building, sometimes it is the use of free-standing objects inspired by various products of nature, sometimes the use of various types of vegetation inside and outside the designed building, and sometimes the use in design – as the architects themselves metaphorically suggest – of various natural processes, such as erosion. One way or another, all these projects are connected with topography and geology.
The Copernicus Science Centre in Warsaw was no different. The project presents a simple and clear two-storey building, which has been subjected to precise functional and aesthetic erosion. The main, orthogonal block on the plan of the letter “L” houses the exhibition space, auditorium, café, backstage and seminar rooms. All functions are connected by the agora intended for temporary exhibitions. The block is perforated with irregular holes creating atriacraters, which, thanks to grass, water and trees, introduce fragments of the surrounding landscape into the interior and which are to significantly help control the temperature and air quality in the building. Like the rocky elements of the walls and ceilings, they constitute a characteristic leitmotif of a rational and clear spatial layout. Consequently, a terrace accessible to visitors was designed on the roof of the building, with the topography of the riverside areas surrounding the centre (according to the architects, it is simply a fragment of the Vistula embankment raised 12 metres above the ground, which was occupied by the building). The building opens up to the Vistula flowing along the plot through perforations in the elevation. Here, by the riverside promenade, there is an amphitheatre formed in the terrain, an open-air gallery made using rammed earth technology and the most characteristic element of the building's landscape architecture – an artificial rock, an erratic boulder, in which the planetarium sphere was enclosed. The concept also provided for the establishment of a Discovery Park located outside, which was connected by a wide pedestrian route to the space of permanent exhibitions in the Copernicus Science Centre building. Like the building itself, the park was to become a kind of collage of landscape forms occurring in the surroundings.

Copernicus Science Centre – competition schematic diagram. Drawing from Author’s archive
In his book Landscrapers Aaron Betsky wrote: “Buildings replace the ground. This is the original sin of architecture” [15]. It happens because as they replace the ground buildings take up space, sunlight, air et cetera. Copernicus Science Centre has its place in the developing family of new designs of RAr-2 Laboratory of Architecture, designs which examine the notion of a building as species of social landscape. A building constitutes a social landscape within which public roads and exhibition spaces permeate in several points. The objective was to create a public building with very complex programme: a unique crossroads for tourists visiting the centre or for individuals strolling along the boulevards located along the Vistula river. The configuration of the design on three various levels – the roof, the exhibition hall and underground workshops and storages – constitutes an equivalent of the cross section sketched in the history of the design, from barely formulated speculations at the stage of competition design to strong construction of the realised design. From the very beginning the idea of the design was to accumulate the exhibition areas and visitors in the “integration machine” from the one side and in the landscape from other. Authors wished to create a smooth connection with the river bank of Vistula.

Copernicus Science Centre – bird’s eye view. Photo from Author’s archive
Throughout the whole contemporary period functionalism has been following one of two paths: for majority it has been shaped in compliance with the programme, but for a minority, including the works of Mies van der Rohe and engineers such as Pier Luigi Nervi it has been shaped according to structure. This division between function and structure, between people and materials has proven crucial for the humanist tradition of modernism [17]. In Warsaw design it has been replaced by programme and structure combined and jointly defining the form of architecture. This method of operation has led the author to the conclusion that there is no clear borderline between perception and interpretation while the said interpretation constitutes solely a specific type of perception. The difference in the degree of precision occurs between representations but not in nature. With the completion of the Copernicus Science Centre in 2012 the idea of shaping of its architectonic form was available for evaluation on the basis of the construction of considerable size and surprising appearance. In fact, as soon as photos of the completed project have been released to the press the surface of the roof has quickly gained the status of an icon of a new type of architecture, a new unique face, which described enormous, exposed, unlimited space soaked with Deleuze nomadology. This architecture does not deprive of anything, it replaces nature with unnatural nature.
This is a well-known history dealing with the issue of reflecting nature’s beauty in art. Nature has played a key role in the history and theory of architecture appearing as a constant motive in architectonic texts since the very beginning of their existence like in those by Vitruvius. In the basic 15th century text of Alberti Ten Books of Architecture nature is perceived as a basic element of development of both theory and principles of architecture. Alberti infuses architecture with divine attributes though a set of complex representation operations in which nature is the lever between god and architecture, where proportion is the shaft between human and nature and finally where human body is an object joining nature and architecture [19]. In modernist theories of architecture from the beginning of the 20th century such as radiant city Le Corbusiera from 1929 urbanism gains new meaning and “nature occupies an important and complex position, both as specific pragmatic consideration and as metonymic construct – architecturalised, flattened in space and synchronised in time… Nature is claimed and suppressed, domesticated by the ideology of urban discourse and represented by controlled geometric neutral plan, neutral greenery not only in Radiant City but also in numerous post-war and later urban projects throughout the majority of the 20th century” [19]. Similarly to urban planning nature began to be perceived as environment though theory of systems in the 1960s. Environment included not only natural conditions and resources but also social and anthropological aspects as integral parts of the municipal kingdom [19]. These approaches did not rely in compliance of architecture with the natural environment, air, light, sun and health like in Radiant City but in the environment itself “designed as system and organised as discourse though regional planning (discourse, which was and still is the intermediary between the political and the physical world – a political instrument of control)” [19]. The theory of systems penetrated every discipline, including science. It seems that reconsidering the question of nature relies in finding the right questions and not in searching for instant replies. “Thus, the point is to reconsider and analyse the inherited truths through creative use of representation as a thinking tool in creation of architectonic knowledge” [19].
Nowadays in the 21st century the situation remains the same as in the case of Cezanne when faced with the mountain of Saint Victoire – it is the same desperate struggle to create something that would reflect the natural object yet remain autonomous. Accepting nature as the object of research of such exploration is characterised by trans discursive approach. The crossing points of various forms of discourse: scientific, philosophical or historical are inseparably connected with exploration of notions based on our own understanding of nature. In this manner we are broadening the discourse of architecture itself. “These discursive crosswords resulting from our interpretations of nature present and sometimes even reveal our involvement in natural phenomena as their materialism, force and methods of generation overlap and influence one another” [19]. Let’s take a look at this pebble with a lot of small holes (Fig. 3).

Stone with small wholes. Author’s photo
It constitutes a complex internal structure and possesses long history. From liquid magma it underwent the process of rapid solidification and subsequently thousands of years of erosion caused by water and air and also through contact with other stone surfaces. The little holes have been drilled in the stone by organic creatures which settled inside this very pebble. We may identify numerous significant analogies with architecture in this example.
Nature as a model of architecture – this motive has been known for decades. But a lot depends on the idea of the artist and his vision of the works of nature, on filters the artist applies in his activities and on formal language and also on the ability to translate nature into architectonic terms. “The common space between architecture and science in understanding nature is the central role or representation as exceptional area of knowledge” [19]. The question in what way representations of nature act as tools in scientific discoveries – and also concerning the resulting contradiction between art and science, the manner of perception and objectivity - all of them used to constitute the subject of debate of historians of science, philosophers and historians of art. “The connection between art and science has influenced the development of scientific knowledge since it includes examination of natural phenomena opening the question concerning the role of representation in assumption of nature as the subject of studies in the scope of architecture” [19]. What is more, architectonic forms are indifferent: they ignore yearly cycle of seasons, they do not create anything or die. Regardless of the great temptation constituted by computer animations “architecture remains, just like for Goethe, the frozen movement” [20].
Bergson has never claimed that architecture may become absorbed by perpetual becoming life. On the contrary, he has conducted the fundamental differentiation between the organisation of nature and production of humans. Human production, as he stated, “relies in shaping matter, making it more flexible and bending it, transforming it into an instrument on order to become the master. It relies in joining parts of matter in order to obtain their co-functioning which is organised into an ideal. What is more, this gathering realises a plan which encompasses the future whose form it indicates” [20].
Designs represent lack of future, the indispensable peace of architecture. The construction itself may manifest the flow of time. “To achieve it, a design needs to exceed beyond its plans. It must somehow excel itself into an area where events are not governed by any external goal but are unpredictable and impossible to regain. In such rare and brief moments when a design becomes spontaneous one may conclude that the new architecture has fulfilled itself” [20].
When we mentioned stone lying at the riverbed or even beneath it earlier it was suggested that we may discover a unique fossil record of all forces which contributed to its final form. Its components affect various scales – the structure, shape, grain etc – but they have also been eroded, probably have been inhabited and perforated. In the period of creation of the design of the Copernicus Science Centre the Authors were deeply interested in how the surface and shape of a rock became what they are – as possible analogy to the type of architectonic thinking. The difficulty in this method of thinking was as follows: how can it be transformed into a different reality of architecture? How can it be transformed into an architectonic idea without remaining on some helplessly mimetic level? We have witnessed attempts at organic architecture in the past. Some of them dramatically failed exactly because their authors were unable to gain sufficient distance to the natural sources of inspiration. Sometimes they ended up producing false, naturalistic rhetoric of the so called organic curves and rocky textures.
The design submitted for the competition suggested that the planes of individual levels of the building constitute a landscape: the low levels were connected with the river. In terms of architecture the design was poorly developed. At the early stage the drawing was supposed to constitute solely a concept imitating the structure of perforated large mass (mass of the ground). Whereas for Eisenman in his design of the Culture Centre in Santiago de Compostela and in FOA, the design of harbour terminal in Yokohama, the language of architecture consisted of a fold [21] in case of Copernicus Science Centre this was constituted by a projection of archetypical and iconic cave. The common feature for these designs is the play with emptiness, not with matter.
Initially as pure geometry, the structure of CSC had gradually become more oriented. The local environmental features have contributed additionally to the uniqueness of this design: the inclines along the façade have created definite connections between individual parts of the park and the green roof of the centre, crossbars have been placed in the exhibition spaces as enforcement and transfer of the construction above the tunnel of Świętokrzyska Route. The planetarium constituted a sperate lump, an erratic boulder. As Giedion referred to Galerie des Machines built in Paris in 1889: “Materials have not been kept within a closed system but they floated in the field of shifting forces. The progressive connection between components has gradually defined the structure. The construction evolved into a form” [20].
The construction evolved into a form but in the opposite direction than the one predicted by Giedion. The architecture of the design of CSC did not need to be stripped of tradition and monumental character to reveal the well-designed constructions. On the contrary, the building process could have been regained for architecture. Another important step was made. The possibility of extension and implementation of erosion geometry into a design was found in order to render ideas in three dimensions.
This has led to an enormous abundance of openings, shapes and empty spaces. In effect this constituted a language which allowed us to discuss the design with large dose of freedom. The intention was to create something analogical to the river, to the forces existing inside the river, something resembling the wild landscape of the Vistula river but at the same time something artificial like a prosthetic vehicle. It would be ideal if the Centre looked as if it had existed before the city was founded.
The structure of the Copernicus Science Centre folds and stretches in order to adjust to the changing incline of the terrain and the space inside is quite mysterious. The centre consists of two levels of laboratories and exhibition rooms with two interwoven internal core floors which contain all maintenance, electrical, ventilation and construction functions of the building. Once inside one may look up at one of those dark, steel structures between the floors and observe the famous Vieredeel ceilings used by the engineers from Buro Happold to solve one of the key technical problems of the design – namely the transfer of the construction of the building above the tunnel of Świętokrzyska Route running along the Vistula river. These spatial constructions made of steel and concrete are strong enough and simultaneously sufficiently flexible to allow laboratory floors to remain open without the need to implement supporting walls or columns, which would disturb the laboratory and exhibition space. They rest on the edges of the perforated walls made of raw concrete blocks.

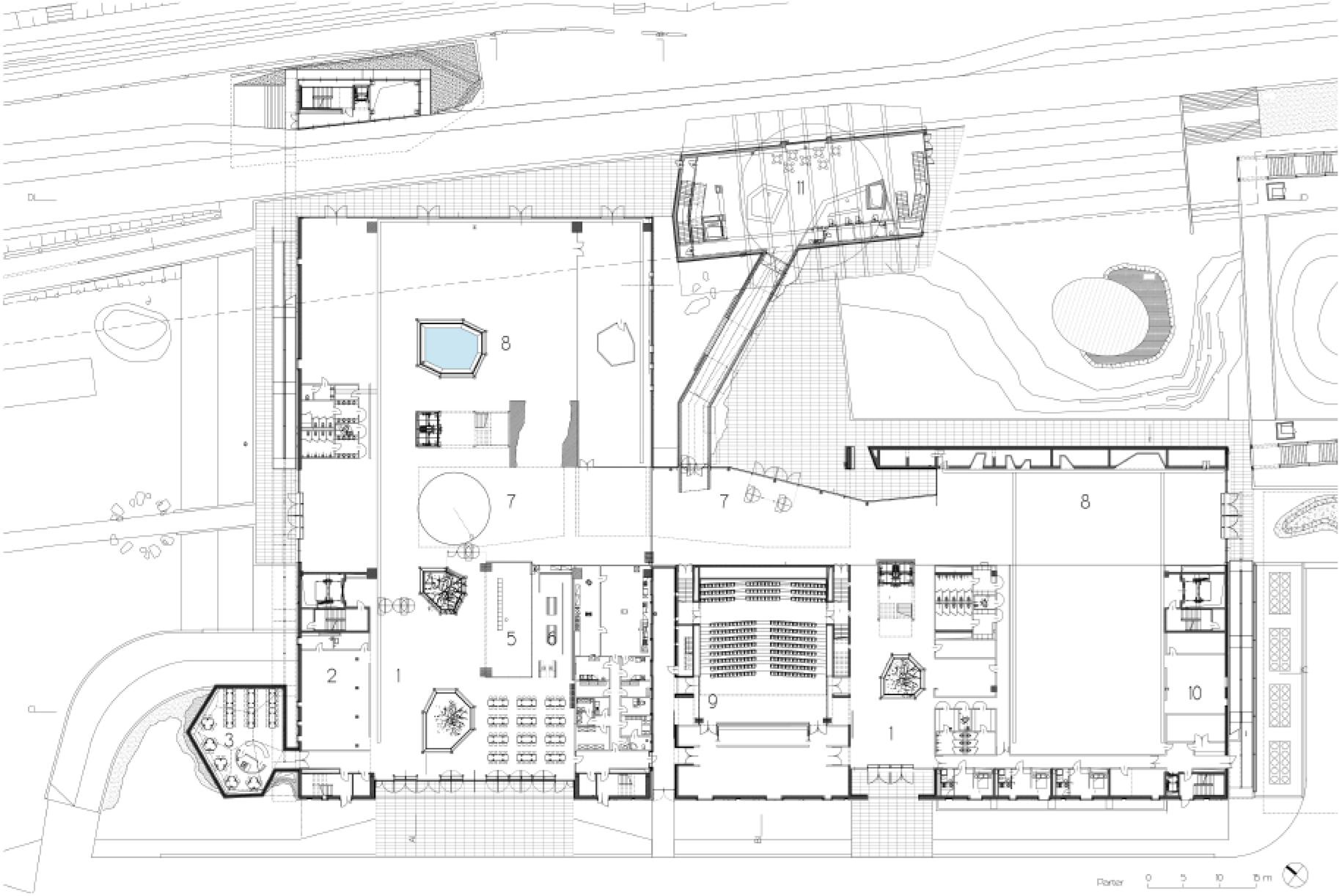
Ground floor plan. 1 – foyer; 2 – dressing room; 3 – common room; 4 – ticket office; 5 – shop; 6 – cafeteria; 7 – agora; 8 – exhibition; 9 – auditorium; 10 – laboratory; 11 – planetarium foyer. Author’s drawing

Cross section A-A; Author’s drawing
The elevation on which the centre is located contains a system of terraces and platforms and additionally acts as the mechanism connecting the exhibition space with the exterior. It is a king of appliance providing maximum connection between the building and Vistula boulevards, their paths, future parks and buildings, it actually constitutes additional public space with shadowed places, formed yards, ramps and walls of greenery.
A series of top-down and side perforations in possible maximum volume has been applied onto the uniform grid with the dimensions of twelve by twelve meters defining the regular shape of the building (of letter L). This system of reversed bells of Gauss directed towards the northern light creates the constellation of six crater-shaped patios, which define the final construction structure of the centre. The interior of the science centre conducts all exchanges with the external environment through these perforations: entrance for visitors, transit of pedestrians, natural light inlets and climate control. Inclusion of fragments of nature and experimenting in the open air is possible thanks to this over-scale, drilled pillars to such extent that they are transformed into open buildings oriented on natural light sources. This inclusion system within a large space of the centre also constitutes the mechanism of climate control for the building: natural machines of energy exchange. Their forms are facing northern light and constructed in such a manner as to block direct summer radiation and activate evaporative cooling and greenery systems thus lowering the temperature inside by a few degrees: natural cooling mechanisms which prepare the air for cooling and low speed air supply through the floor into the large hall. The activation of micro-greenhouse reverses this cycle in winter – this increases the speed of air and cools the temperature of the roof surface and large shadows of photovoltaic panels reduce the energy consumption of the building.

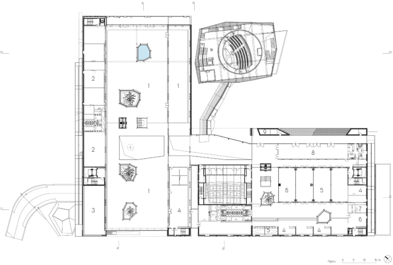
First floor plan. 1 – exhibition; 2 – school laboratories; 3 – outdoor terrace; 4 – office; 5 – conference room; 6 – hall; 7 – dressing room; 8 – cafeteria; 9 – technical room; 10 – planetarium. Author’s drawing

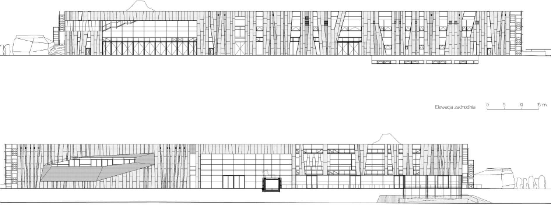
North elevation. Visible ramp allows access to the roof of the Copernicus Science Centre without having to enter the building. Author’s drawing
The catalogue of theme gardens for relaxation and individual contact with exhibits touches the indefinite space of the centre defining it through its multicolour light and bio and geo- textures. Fragments of nature overlap with the picture of the artificial landscape of the exhibition and visitors’ space simultaneously playing the role of the roof construction – a spatial organisation with hanging gardens of light which also support the roof. Craters with gardens were located in various points of the internal space of the centre in order to evenly distribute the elements of natural landscape combined with organisation of the exhibition space. They dominate in the landscape of the science centre. Their mutual relations determine the space of the large hall. The resulting space is a continuous and seemingly unlimited extension of the horizontal views over the river and surrounding park.
The notion of a geometric system extracted from nature but moving parallelly to nature resembles what Frank Lloyd Wright said about an ornament – namely that for him “it was a microcosm, conventialisation of the natural world” [18]. The same geometric order applied in case of the picture of a stained glass window may relate also to the layout of the building and even to the whole urban or landscape system. Basic architectonic grammar in all scales may emerge from this emblematic geometry. As a result the geometric order is studied in several scales.

Patio/crater – cross section and view; Author’s drawing and photo

Roof plan. From the description of the competition work: the greatest phenomenon of river and rain activity – erosion – becomes a stage for the creation of a new roofscape code. Author’s drawing
Similarly to new architecture an attempt was made not to create the final design for the centre. Instead, a search for the diagram which would encode the procedures determining the order of exploitation of the building was sought after. We may imagine this design as a microcosm of nature, as organisation of involved matter, similarly to nature, into a productive activity.
At the beginning of the dialogue with the studio the exhibitions curators of the Centre were apprehensive about the proposed methods of presentation of exhibits. Since the very beginning of work on this design we had tried to solve various urban, curator, programme, circulation and other problems with the use of the relatively synthetic language of architecture. An attempt was made to use every element, to obtain the greatest possible advantage over architecture. Taking this into consideration we may state that the design imitates nature. In case of the Copernicus Science Centre the intention was to present various types of exhibits in a manner that would reveal their specific features to the fullest. In this specific museum issues related to perception of objects, to the manner in which people perceive one another, the park, the river and the city were considered. All this constitutes one entity, a singular universe, which reveals these connections between people, objects and the surroundings.
The latter partially explains the contrast within the design between conventional experiment rooms in the sequence layout and more ambiguous exhibition spaces which maintain the sense of connection with the surroundings through pieces of nature – craters, light cracks with greenery experienced through glass. Like in some photos of Thomas Ruff the frame becomes essential for the interior [22]. Even big frame elements in the public space had also been included to improve the observation of the riverbank landscape in big scale. The whole building frames the park but the park also enters the building – hence the cracks and layers. Greenery is transferred into the display windows and visitors move into the gardens, This is yet another aspect touched upon in the design of the Copernicus Science Centre – interpretations between the interior and the external world, exploitation of area, light, space and material for generation of a building as an organism.
One of difficulties in describing architecture in terms of its references and connections with other phenomena is the fact that it leaves us outside the individual design. Without this internal life of the design no architecture exists. A work of art may rely on intuition but it still should be expressed and articulated and this directs the discourse onto the issue of language. This results from many years of gradual experimenting. It seems that recently this notion has been overused in a reductionist manner to be used in designs which perform sincere demonstration of technology and materials they have been made of.
The concept of materiality according to RAr-2 seems far more complicated as it is combined with intended shift of conventional expectations. Mies van der Rohe is one of masters of this effect of ambiguity of material, especially in combination of glass, steel, stone, water and light. Particularly the simpler, more puritan version of his works may be found in Farnsworth House where steel columns and glass enable clear view of the landscape. There is also a more ambiguous, more complex version of his architecture which may be found in the Seagram building in New York where brown glass suggests practically the same elements as the steel, rusty frame. It is as if it all has been poured as one big lump of architectonic matter. In this moment we are nearing what we attempted to achieve in the design of the Centre. Artificiality is used to suggest something nearly natural. This activity may be characterised as romantic Mies van der Rohe: more than any formal analogies this is the paradoxical mixture of classics and romantics.
The concept of Wright’s master Louis Sullivan is even more compliant with the concept of architecture of Rar-2 Laboratory of Architecture. It is neoclassicist style but transformed into something completely different and more organic [23]. Today when we look at the drawings and models of the Copernicus Science Centre we may think not only of “tectonics of plates”, of geological perforations but also of light towers. On the other hand a light tower constitutes a basic element of earlier modernist architecture, which may be found both in works of Alvar Aalto and of Le Corbusier. It is present for instance in the monastery Le Corbusier in La Tourette. In the Warsaw design it assumes a different form as an object within space and space within an object. The patios/craters twist their form to react to the main geometries of the design, the grid of construction and the layouts of floors. This makes them look like crystals similarly to certain natural forms but in reality their shape results from purely conceptual design activity. An ideal situation is the one when what we wish to achieve in the design is something technically feasible but also in certain sense natural.
The design of the Copernicus Science Centre is of mineralogical character – the concrete is very raw, almost like firm ground. The concept of the wall of the building as thickened, layered and inhabitable frontier between the interior and the exterior allowed RAr-2 to reconstruct the enclosure as threshold space which shapes social spaces along the external edge of the building, modulates and enables contact with the climate, allows daylight into the structure of the building and creates special atmosphere and mood for users. The nature of the wall determines the quality of the space created within and it also constitutes the architectonic manifestation of the surrounding activity. The emphasis on external walls as carved and inhabitable masses attracting daylight and anchoring it to the ground contrast strongly with the features of softness, clarity and ephemerality typically connected with modern architecture. On the contrary RAr-2 attempts to increase the sense of mass, density and thickness of the building walls in prepared designs. Layers and depth of a wall protect against wind and rain providing borderline space of social importance and aim at restoring this massive, inert quality which according to others plays no role whatsoever in the construction of living environment of a contemporary human.
At the first stage of the design of the CSC the question was: how to include windows? They were designed as geological slits with sharp edges: they are like cracks. When we analyse the drawing of these windows we may be surprised by the sense of fundamental opening. It seems that in the development of designs of RAr-2 there have been a lot of consideration of basic elements of architecture since the very beginning. The creation of a wall which is credible and which is real has become a difficult task nowadays. Sometimes we need to travel a long way for such a wall to become authentic – so that it becomes a part of architecture and not only a cardboard model. Eventually this is the challenge facing any architectural work. This aspect seems important in the work of RAr-2 Laboratory of Architecture since the very beginning: to protect architectonic impressions against other types of experiences. Architecture constitutes a “one to one” experience and not the experience of reproduction – otherwise it shall not survive as it becomes solely a simulation.

West and East elevations (without planetarium). Author’s drawing
Without any influence onto the deceitful game with gravitation the common misguided conviction of architectonic value of the Copernicus Science Centre relies in the fact that the connection of function and form in an attractive manner has been achieved. Despite the fact that in the realisation of the Centre the care for both efficiency and beauty is visible they were not combined but on the contrary they were torn apart and began playing separately. Firstly, the layout of CSC was interpreted on the basis of the set of basic data included in the competition assumptions of the investor with economic criteria in mind. Subsequently, corrections into the form of the created diagram were introduced inspired by aesthetic ideas. Thus the form did not act in compliance with the fact that it may be logically concluded form the function. Rather than that, both of these conditions when separated were able to stimulate one another. Functionalism has become both the theory and the method of composition. If the still archaic concept of function has led to slightly indifferent interiors in sharp contrast with the external vitality then it seems that the novelty of the CSC relies in the presentation of what happened within the frames of weakening of the formal vocabulary of modernist ideology. The expression of language of RAr-2 aptly renders this rehabilitation of form as a partially autonomous value thanks to which the building was capable of expressing the functionalism and abstraction of the 21st century better than engineering and education. In this sense the realisation of the Copernicus Science Centre presents a fragile paradox: the functionality area has been considerably extended yet it led to the achievement of proper relaxation of the yoke connecting form with function. However, due to the fact that its ambivalence constitutes the subject of the balance movement of history the building of the centre suggests that the renewed reflexion on architecture as service may usefully contribute to the beauty of this form. The tradition of architecture within the fames of which RAr-2 functions is both ancient and modern and it is such within which the internal place of experience and inhabitation develops within the frames determined by layers and depth of external walls.
In a landscape dominated by extensive urbanisation, by scattered city, the increase in global unification coincides with the loss of individual character of certain locations. Due to the fact that buildings have lost their close bonds with the urban morphology and local orography a modern architectural design frequently abandoning the purely technological exercise struggles with the problem of connection between the settlement and its place as well as the nature of places. The attentive and psychological approach describing solely modern processes does not qualify for the explanation of reality and it cannot provide intervention strategy which might prove to have radical and innovative influence onto growth of the city. Instead of this there exists the need to conduct operational activities within the genuine city and landscape in order to discover traces on earth, the system of relations to which the design should also relate to. It seems that in the modern world one may not search for unifying figurative motive, the only uniform motive is constituted by interpretation of places as concentration of symbols indicating the direction of actions. Thus a project is understood as a symbol connected with both history and myth. The role of this myth is necessary in order to comprehend the relationship between the natural and the artificial.
The Copernicus Science Center project aimed to establish the premise to design using innovative systems, forms, technologies, and frameworks to achieve a better quality of life in contemporary cities and in the built environment. In this case an architectural project stems from the deposits of shapes discovered on land. In contemporary culture dominated by virtual reality topographical, geomorphological and historical analyses allow for the recognition of stratification of a given location. This project is a kind of experiment – an attempt to create a model of a new way of perceiving the relationship between architecture and living nature, which from a decorative and ornamental element has become the main component of the architectural composition. It is believed that today we should no longer focus on stopping the process of global warming, nor on slowing it down, but on reversing this trend. Hence the radicalism and scope of the project. The aim is to be an explosion of urban nature. These ideas take the form of solutions both on the macro scale of spatial planning, and on the micro scale of buildings thanks to projects such as the Copernicus Science Centre.
It seems reasonable to ask whether it is worth it and advisable to build in flood-prone areas? In order to fully restore the Vistula Boulevards to the residents of Warsaw as a fully-fledged public space, so important for the modern city, it was necessary to do so. The areas around the center and the building itself have been flooded several times by the rising waters of the Vistula. The first time was in 2010, while it was still under construction. The building withstood high water thanks to the adopted construction solutions and the innovative technologies used – the flow of water is accepted, nature is redeveloped. Urban activities edified on left Vistula river bank incorporate his natural element as the main body of project. The topography is the raison d’entre of the plan. Nature again traces the design, and here it engenders a process to be developed over time.
To analyse and attempt to formulate new hypotheses and possibilities regarding a new architecture it is useful to examine some phenomena that have certainly led to and will continue to lead to growing interest in urban organization and the social, cultural and ecologic development of cities. The question we must ask ourselves, therefore, is how can we find more sustainable ways of experiencing and sharing the urban space, taking advantage of the areas available and of existing and/or planned buildings? The purpose of this article was to focus the attention of those working on transforming the built environment-specially architects-on the importance of an urban space vision in which, with sure, the nature and the new technologies play a key role as a stage backdrop for the city and its complexity and contradictions.
The above presented project of the Copernicus Science Centre in Warsaw seems to be an example of this type of new architecture. Operating for over 10 years, visited by over a million people every year, it is something like an unfinished, open structure, according to Richard Sennett’s nomenclature – an “open building”, which is dedicated to an “open city” [24]. Dedicated to the city, in which biodiversity is represented by factors such as the functional and social mix and the coexistence of neglected and nonneglected spaces of different shapes and size-all potential opportunities to design and create a planetary garden. “The garden has always been a paradise and a place of refuge, an expression of the relationship between humans and nature, a reflection of identities, dreams, and visions. Today, however, the gardens” (also those at the Copernicus Science Centre) “are much more than a romantic retreat-they are also a place where concepts of social justice and a sustainable future can be tried and tested” [25]. “That is the ethics of an open city” [24].

Roof garden. Author’s photo. Today the roof garden is an oasis of green, but the project is working to increase habitat throughout the neighborhood and city through ongoing scientific partnerships and community engagement
Credits:
Copernicus Science Centre
Warsaw, Wybrzeże Kościuszkowskie 20 street,
Authors: RAr-2 Laboratorium Architektury, Jan Kubec,
Architects: Jan Kubec, Magdalena Łukasik, Anna Małek, Michał Tomanek, Zbyszko Bujniewicz
Author’s cooperation:
Architects: Grzegorz Buława, Krzysztof Zalewski,
Construction:
Buro Happold, Piotr Tarczyński, Robert Stachera, Rafał Majsterek, Grzegorz Konopka,
Installations: AIR Project,
General contractor of construction works:
Warbud SA,
Investor: capital city of Warsaw
Ground area: 40 665 m2
Total building area: 19 150 m2
Building volume: 123 000 m3
Competition, First Prize: 2005
Design process: 2006–2008
Under construction: 2008-2010 – first stage, 2010-2012 – second stage
Cost of building construction: 364 000 000 pln
Cost of exhibits: 67 000 000 pln
Awards and mentions:
Nomination for the European Mies van der Rohe Architecture Award – 2011,
Award of the Minister of Culture and National Heritage for the best implementation of a public utility building in the years 2000–2012–2012,
Nomination for the European Public Space Award – 2013.