Architectural historians describe a few decades in architectural culture following the Second World War as an interregnum between an expiring Modernism and a dawning Postmodernism, during which Modernism continued to produce its revisions [1]. These revisionist discourses, defined by Goldhagen as “pluralizing Modernism”, indicate the multiple nature of Modernism [2]. The revisions of Modernism that emerged due to these reactions, which became widespread in the mid-1960s against the uniformity brought about by the International Style, created a "pluralist" architectural environment. New approaches, such as Brutalism, Metabolism, Late Modernism, and Postmodernism, sought to transcend the limiting doctrines of the modern movement by seeking diversity [3].
Brutalism came to the forefront of postwar architecture for its ethical principles that advocated using materials in raw form, the clear exhibition of structure, and the unique “image” value of each building [4]. In contrast to the rough, brutal, and cold impression, it captures the essence of the material and structure. In 1955, British architectural historian Reyner Banham first announced the principles of the movement in Architectural Review magazine, which subsequently gained global traction. The initial application of Brutalism emerged in England in the mid-1950s [5]. Modernism had a brief but visible dominance in England in the 1950s and 1960s, and a unique contribution to 20th-century architecture was made in England by Brutal esthetics [6]. A hybrid of traditional British architecture and Stalinist methods based on welfare-state ideology dominated British architecture in the early years after the World War II. Countries with the most advanced welfare state architectures served as examined examples of the welfare state ideology. During this period, in addition to the Swedish example, architects committed to the Communist line also made conscious attempts to create an English equivalent of socialist-realist architecture propounded in Russia [4]. Young architects, including the Smithsons, rejected the ideology of welfare architecture and all attitudes rooted in tradition. Instead, they sought intellectual grounds to establish their standards. Brutalism gave a conscious form to the architectural approach that became widespread among young architects in the 1950s [7]. The analysis of Renaissance architecture inspired them, pioneered by Rudolf Wittkower, and the new works of Le Corbusier and Mies van der Rohe [8]. Unité d’Habitation, designed by Corbusier to solve the postwar housing problem and the béton brut approach behind it, was one of the inspiration points for brutalists. Corbusier treated concrete almost as a new material, creating a unique esthetic perception that combines raw concrete with the grain and knot traces of wood formwork reflected on the surface [4]. It was the beginning of the process that evolved into Brutalism, inspired by Corbusier’s honesty with materials and Mies’ structural approach at the Illinois Institute of Technology [8].
Brutalism, which emerged in England, has resonated worldwide over time. It has spread globally and has influenced many continents, from Europe to America and Asia [9]. Brutalism has localized by acquiring a unique form in each region it impacts. The “brutalist principles” described by Banham through the British experience in the 1950s with globalization transferred to different geographies; these three basic principles were either directly applied or localized and adapted in culture. For instance, the effects of Brutalism in Turkey have been visible in architecture since the 1960s, paralleling international expansion [10]. Notably, with its intercontinental location, Istanbul has produced unique cases that exemplify the local diversity of Brutalism. The number of studies on brutalist structures in Turkey is quite limited in the international literature, and examples from Istanbul have not previously been considered in the context of “Brutalism”.
The methodology of this study comprises a two-stage process. The first stage involves an analysis of brutalist buildings in Istanbul. Following a review of the literature on buildings in Istanbul constructed between 1960 and 1980, those exhibited characteristics of brutalists were identified through preliminary selection. The extent to which the identified examples fulfill the principles of memorability as an image, clear exhibition of structure, and valuation of materials as found, as defined by Reyner Banham, was analyzed. Fifteen buildings comprising at least two of these principles were identified, and their functions and current status were determined. In the second stage, three buildings were identified that fulfill Banham’s three principles and best demonstrate the localization of Brutalism: Manifaturacılar Retail Center, Istanbul Reklam Building, and Istanbul Officers’ Club. In the focus of these examples, detailed architectural analyses were conducted in the context of Brutalism and its localization in Turkey. The concept of “localization” was discussed in terms of its approach to the historical environment, the use of local materials, the reflection of regional and cultural codes on the form, the use of traditional building elements, and artarchitecture dialog. For the theoretical part of the study, local newspapers and other periodicals, historical photographs, and international literature are essential sources. The analyses were supported by fieldwork and on-site photographic documentation.
Architecture in Turkey developed in parallel with the official state policies and the sovereign ideology until the 1950s. The central tendency in architecture during the 1950s was the search for a universal identity [10]. Military intervention in the 1960s and the subsequent Constitution of 1961 brought about a series of social, cultural, and economic initiatives. With increased freedom of expression, social ideas and ideological statements began to develop in liberal environments [11]. The reflection of this situation in architecture is the occurrence of a pluralist approach that moves away from rigid rationalism and a tends to fragment forms [3]. In this pluralist era, between 1960 and 1980, it is possible to list the conceptions seen in Turkey as follows: Rationalism-Purism, Brutalism, Regionalism, and the search for independent forms [10].
Innovations in education and current architectural publications were some of the most significant factors that enabled the reflection of the global architectural movements in Turkey. Between 1950 and 1960, foreign architects began participating in academic staff. Lectures by Bruno Zevi, Rolf Gutbrod, Jürgen Joedicke, and Richard Neutra introduced students to current architectural movements [12]. Rolf Gutbrod (1957-1959, summer semesters) and Jürgen Joedicke (1964, summer semester), guest lecturers at Istanbul Technical University, significantly impacted the emergence of Brutalism in Turkey. Gutbrod is an architect and academic who is well known in Germany for his irrational architectural practices. The idea that there could be different solutions to the rational approach, which was almost a dogma at the time, was broken by Gutbrod's lectures at ITU [13]. The projects that Gutbrod won project competitions after returning to Germany from Turkey are notable for their brutalist design approaches: the Lecture Center and Library, University of Cologne (1960-1968, Cologne), and the Museum of Decorative Arts (1966-1984, Berlin) [14]. Based on this, Gutbrod probably introduced students to brutalist along with the irrational design approach during his lectures in Istanbul. Joedicke was a German architect and architectural historian who pioneered the critique of modern architecture. He lectured on Modern Architecture, Organic Architecture, and Brutalism at ITU, and the most important of which is “Brutalism in Modern Architecture”. Joedicke lectured on this course two years after publishing his article “New Brutalism-Brutalismus in der Architektur”. The lecture’s content, in parallel with his article, included the basic principles of Brutalism, its first practices in England, and global examples [15]. Considering the conditions of the period, this direct contact with Brutalism stimulated the students’ development.
It became common among the first graduates of this period to go abroad and intern in architectural offices to get to know modern architecture more closely [16]. What makes these internships accessible is that foreign architects are included among the academic staff, providing an opportunity for students to get acquainted. In addition, some young architects who received their architectural bachelor’s degrees abroad returned to Turkey and conducted their work from this perspective. The architects who practiced Brutalism in Turkey after the 1960s, as seen in the architects whose designs are discussed in this article, were primarily trained, interned, or practiced abroad. In this period, architects mostly followed current architectural developments on a global scale through foreign magazines such as L’Architecture d’Aujourd'hui and Moderne Bauformen. This interaction was influential in the export of new architectural movements to Turkey. Architectural historian Üstün Alsaç defined this influence from Western models as a learning process. Adaptation was ensured by developing locally specific materials and construction practices during the architectural application phase [17]. Brutalism was one of the modern movements in Turkey that successfully achieved this synthesis. In parallel with the examples discussed in this article, it is possible to discuss this synthesis more broadly, taking a historical environment approach, using of local materials, regional and cultural codes reflected in the form, and traditional building elements.
British architectural historian Reyner Banham put forward the basic principles that distinguish the concept of Brutalism from other contemporary architectural approaches in his article The New Brutalism, which was published in Architectural Review magazine in 1955, and in his book The New Brutalism: Ethic or Aesthetic, published in 1966 [4, 5]:
Memorability as an image
Clear exhibition of structure
Valuation of materials “as found”.
The first principle is to create a memorable impression. Banham defined the concept of image in its simplest sense as “visually valuable”. The image fundamentally requires that the building be an immediately apprehensible visual entity and that the form grasped by the eye is affirmed by the experience of using the building [5]. According to the principle of a clear exhibition of the structure, all the constructive elements that complete the building should be used without concealment or covering. The last principle concerns presenting materials as they came from the source or using raw variations of all selected materials. From a material point of view, the word “brut” means that concrete should not be hidden, wood should not be sanded, plaster should not be smoothed, paint should not be applied directly to walls, and the rough surface of brick should be protected [18]. In this context, the primary purpose of Brutalism is “…to find a structural, spatial, organizational and material concept that is ‘necessary’ in this metaphysical sense to some particular building, and then express it with complete honesty in a form that will be a unique and memorable image” [7].
There are very few international studies on brutalist structures in Turkey. This is because these structures have not been sufficiently examined under the title of “Brutalism” in the local literature. Within the scope of this article, structures in Istanbul between 1960 and 1980 that were brutalist and brutalist-influenced were analyzed. Within this framework, 15 structures with different functions were identified, 2 of which were demolished, one abandoned and 12 in use (Table 1, Fig. 1). From the buildings in the table, three structures are selected that exactly fulfill the principles defined by Reyner Banhman and best clearly demonstrate the localization of Brutalism: Manifaturacılar Retail Center, Istanbul Reklam Building, and Istanbul Officers’ Club. These examples are discussed in detail in the next section as unique cases that contribute to the local diversification of Brutalism around the world. The architectural analysis of the buildings was systematized through Banham’s brutalist principles, and the unique “localization” characteristics of each building were discovered.

Brutalist and Brutalist-influenced buildings in Istanbul (map and table created by authors, 2024) [19]
Brutalist Examples in Istanbul (created by authors, 2024)
| NO | NAME | ARCHITECTS | BUILT IN | FUNCTION |
|---|---|---|---|---|
| 1 | Rexx Cinema* | Maruf Önal | 1961 | Culture |
| 2 | Kınalıada Mosque | Turhan Uyaroğlu, Başar Acarlı | 1964 | Religious |
| 3 | Tarabya Mosque | Ali Barman | 1964 | Religious |
| 4 | Sudalı Villa | Muzaffer Sudalı | 1965 | Housing |
| 5 | Palet 2 Restaurant (Big Chefs) | unknown | 1960-66 | Restaurant |
| 6 | Manifaturacilar Retail Center | Doğan Tekeli, Sami Sisa, Metin Hepgüler | 1967 | Trade |
| 7 | Istanbul Reklam Building | Günay C?ilingiroğlu, Muhlis Tunca | 1969-74 | Administration |
| 8 | Istanbul Officer’s Club | Metin Hepgüler | 1974 | Hotel |
| 9 | Tercüman Newspaper Office** | Günay Çilingiroğlu, Muhlis Tunca | 1974 | Administration |
| 10 | Atatürk Library | Sedad Hakkı Eldem | 1973-75 | Culture |
| 11 | UFI Shopping Center | Doğan Tekeli, Sami Sisa, İrfan Ertem | 1975 | Trade |
| 12 | Karaköy Trade Center | Günay Çilingiroğlu, Bilge Kıray | 1978 | Trade |
| 13 | Zincirlikuyu Highways Facilities** | Mehmet Konuralp | 1973-80 | Facility |
| 14 | Apartment in Kanlica | Kaya Tecimen, Ali Çiçek | 1978-80 | Housing |
| 15 | Beyti Steakhouse | Yilmaz Sanlı | 1970-83 | Restaurant |
* Abandoned
** Demolished
The architects of the Manifaturacilar Retail Center graduated from Istanbul Technical University’s Faculty of Architecture, Doğan Tekeli and Sami Sisa, in 1952, and Metin Hepgüler, in 1953 became a master architect-engineer. At that time, ITU had a classical architectural education at the school of Prof. Paul Bonatz. For this reason, Tekeli, Sisa, and Hepgüler were not familiar with modernist architectural principles during their formal education. However, after graduation, they developed their skills through the experience gained from participating in architectural competitions and through exposure to foreign architectural publications, which became more prevalent after 1950. The rationalist approach that underlies their designs as they search for revisions in Modernism is derived from their education [20]. Furthermore, their travels abroad were also significantly influential in their recognition of Modernism. In 1957, Doğan Tekeli traveled to London to visit Robert Matthew’s office through the Royal Institute of British Architects [21]. Metin Hepgüler worked with Roland Rohn in Zurich from 1960 to 1962. During this period, Sami Sisa participated in this work for six months. Sisa also spent six months in Israel, working for Arieh Sharon. In the following years, Doğan Tekeli and Sami Sisa traveled to America and visited the offices of Minori Yamasaki and Kevin Roche [22]. The brutalist influences on the architecture of Tekeli, Sisa, and Hepgüler came less from their undergraduate education than from their travels abroad and learning from foreign publications, which continued into the 1970s.
Tekeli, Sisa, and Hepgüler worked as partners in SITE Architecture Bureau between 1956 and 1966. One of the most important projects of this partnership is the Manifaturacılar Retail Center, characterized by its mat-building approach. Other major projects, such as the Antalya Museum (1964, Antalya) and Police Training Center (1967, Ankara), adopted the same approach. In addition to their brutalist approaches, such as the Turkish Embassy (1962, New Delhi) and the Stad Hotel (1964, Ankara), the Konya Municipality Building (1956, Konya), and the Cebeci Higher Education Dormitory (1959, Ankara), which are prominent among designs of SITE with educational and administrative functions, also have a Rationalist approach. After Hepgüler left the partnership, Tekeli and Sisa’s designs after 1966 mainly consisted of industrial buildings and business centers. The most prominent of these buildings, which used advanced construction technologies with outstanding functional and economic features, are as follows: Oyak-Renault Automobile Factory (1971, Bursa), Lassa Factory (1975, Kocaeli), Halkbank Headquarters (1983, Ankara), and İşbank Headquarters (1993, Istanbul).
Istanbul’s drapers established a cooperative in 1954 to build a new bazaar. After consultations with the municipality, the location of the bazaar in the Unkapanı district was decided in 1955 [23, 24]. The cooperative purchased a 45,000 m2 plot of urban significance stretching from Unkapanı to Saraçhane in 1958 with the encouragement of local government units. As land development is of high architectural and urban importance, the cooperative was first requested to organize an urbanism competition, followed by an architectural competition [21]. First, a Local Zoning Plan competition was organized to determine the zoning status of the region. In this competition, the project prepared by Cihat Fındıkoğlu, Kâmil Bayur, Tarık Aka, Niyazi Duranay, and Özdemir Akverdi won the first prize [25]. The winning project was developed with the contribution of Prof. Luigi Piccinato, who then served as the municipal advisor, and was organized as a zoning plan. In the second stage, based on this zoning plan, an architectural project competition was organized by the Manifaturacılar Cooperative for the design of the buildings [26]. The urban layout decisions made in this competition were binding to the design of the architectural project.
The architectural competition started on February 19, 1960, and invitations were sent to 11 groups, including the architects who had won the first three prizes in the urbanism competition [25]. Doğan Tekeli, Sami Sisa, and Metin Hepgüler won the first prize, Emin Onat the second, and Kemal Ahmet Aru and his colleagues the third [22]. Located in a historical area, the project site is close to Valens Aqueduct, Şehzadebaşı Mosque, Süleymaniye Complex, Vefa Church Mosques, and Molla Zeyrek Mosque. There is also the Şebsefa Hatun Mosque at the center of the site (Fig. 2). The design of Manifaturacılar Retail Center (MRC) presents an authentic analysis of how to design new buildings in a historical environment while respecting the small scale of the traditional housing fabric and historical monuments such as the Süleymaniye Mosque, which dominate the silhouette [21].

Location of Manifaturacılar Retail Center (visualization by authors based on aerial photograph dated 1966 [27])
As an example of Turkey’s “small, multi-part approach” typology, MRC has a scheme composed of blocks with inner courtyards [28]. Each block is positioned at an angle, allowing the courtyards to open toward the Süleymaniye Mosque (Fig. 3). The urban pattern, consisting of fragmented blocks and courtyards, appears to apply the concept of “mat-building” in the historic environment [29]. Alison Smithson defines “mat-building” as a concept based on the possibilities of growth, diminution, and change, where functions enrich the fabric and the individual gains new freedoms of action through a new and complex order [30]. In parallel, the rhythmically repeated blocks in MRC are connected to various patterns and have a plan typology with courtyards. The harmony between rhythms and the richness of the texture was reflected in the site plan and silhouette (Fig.4). Since it is built in an area with a defined zoning plan, it is not sustainable in terms of growth and diminution. Another essential concept in conjunction with matbuilding is “street in the air”, presented by the Smithsons at the IX. CIAM Congress, and is an improved version of the approach taken in the Golden Lane Project. The concept aims to bring people together and revitalize urban street life by moving circulation elements that connect different levels and blocks outside [31]. The central road axis (Atatürk Boulevard), where MRC is located, and the courtyards around which the shops are clustered are connected by internal pedestrian paths, creating a continuous transportation network (Fig. 5). The circulations carried to the exterior provide a visual relationship between the levels and facilitate physical accessibility with the help of courtyards, semi-open corridors, and stairs in various forms.

Manifaturacılar Retail Center master plan (drawn and visualized by the authors based on [32])

Silhouette of Manifaturacılar Retail Center and Süleymaniye Mosque (visualized by the authors based on [25])

Block 1 ground floor plan (left) and Block 2nd floor plan (right) (visualized by the authors based on [32])
Tekeli and Sisa’s perspective on design in the built environment, the responsibility they attribute to the architect, and their way of reflecting this in the design of the MRC are parallel to Jürgen Joedicke’s brutalist principle of “responsibility” in his article New Brutalism. Joedicke defined the principle of “responsibility” as twofold: the architect’s obligation to society and the role of the individual building in the urban structure [33]. This responsibility increases when a new design is made in a historical environment, as in the case of the MRC. Tekeli stated that the historical buildings surrounding the bazaar and their natural influences guide the design [22]. He stated that achieving “harmony” is necessary where the old and the new are balanced. Sisa referred to the relationship between the building and its surroundings as one of the most critical parameters in its design approach. Sisa stated that the architect’s responsibility should not only be limited to the building itself but should also be assumed at the point of integration with the environment. He emphasized the importance of this responsibility, especially when designing a city such as Istanbul, which has a defined texture [20]. At this point, it is clear that in the design of the MRC, architects Tekeli and Sisa act in parallel with the “responsibility” principle of Brutalism in the context of environmental relations.
Manifaturacılar Retail Center has had a remarkable place in urban memory since its construction, thus fulfilling Banham’s principle of memorability as an image. The size of the project area on an urban scale, its visibility, thanks to the potential of its location, and its relationship with the silhouette has enabled it to acquire an image as defined by Banham in urban memory. Even during the construction of the bazaar, it was featured in Turkish films of the period and often was featured in newspaper reports. In the movie Bar Kızı (Bar Girl), made in 1966, the construction stages of the bazaar and the reflection of the Süleymaniye Mosque in the silhouette can be seen (Fig.6). Construction was completed in April 1967, and the building was inaugurated at a grand ceremony attended by Prime Minister Süleyman Demirel (Fig. 7) [34, 35]. Sisa emphasized that urban content can only be created through images. He stated that people are connected to the city by landmarks, so they try to capture an image in every design and that these images appear spontaneously with the nature of the design [20]. In their designs, Tekeli and Sisa searched for form for image value without breaking away from rational principles [22].

Bar Kızı, MRC construction, 1966 (authors archive)

Opening of MRC, 1967 [25]
The second principle of Banham’s theory, the clear exhibition of structure, is reflected in all the facades and courtyards of the MRC. The exposed concrete beams on the facades and courtyards are clearly exhibited as part of the architectural design (Fig. 8a, Fig. 8b). The six-block complex was designed with eight inner courtyards of different sizes (Fig. 3). The load-bearing columns of the internal pedestrian paths encircling the courtyards are also clearly exhibited (Fig. 8e). Furthermore, the circulation elements within the courtyards, including spiral and straight staircases and corridors, are clearly exhibited (Fig. 8f).

Manifaturacılar Retail Center; (a) Block 4, (b) Block 2, (c) façade of Block 1, (d) metal relief by Kuzgun Acar, (e) courtyard of Block 1, (f) courtyard of Block 1 (authors archive, 2022)
The principle of the valuation of materials as found is possible to be seen not only through concrete but also local materials in MRC. On facades, raw concrete is used on slabs, balconies, and stair railings (Fig. 8c, Fig. 8d). In addition to concrete; the façade features travertine stone, a local material, lattice elements such as sun shading on the warehouse facades of the stores, and thin bending sheet metal on the showcases [21]. Even though concrete material gives a cold impression when seen from the outside, Tekeli stated during an interview that concrete is a building component that can be innocent and even beautiful when used well. It can lead to impressive designs in conjunction with an esthetic search [36]. Through this mentality, MRC emphasizes the use of natural materials. The use of raw concrete in the slabs, stair railings, balconies, and even built-in furniture in courtyards is interesting. Making spiral staircases and built-in furniture entirely from exposed concrete in the courtyards was an exciting design decision (Fig. 8f). The railings of the floor halls facing the courtyards are made of raw concrete and steel materials. Similarly, the floors were also made of exposed concrete (Fig. 8e). Although concrete surfaces are still painted, traces of wood formwork remain visible. In addition, the metal relief market emblem designed by Kuzgun Acar on the façade of Block 1, the concrete wall as a backdrop to this artwork, and the small brute concrete balconies on the continuation of the façade are harmonious (Fig. 8c, Fig. 8d).
MRC is one of Turkey’s prominent representatives of brutalist practices, capturing the period’s global design approaches. It is also one of the best examples of the localization of Brutalism in terms of its approach to the historical environment, the reflection of regional and cultural codes on form, the use of local materials, the adaptation of traditional building elements and the integration of art and architecture with the works of Turkish artists. The bazaar’s mass scheme successfully adapts the “mat-building” concept to a historical environment. The historic buildings in the neighborhood were preserved and used as reference points. In this context, the Şebsefa Hatun Mosque, situated between blocks 4 and 5, has been preserved and its surroundings have been transformed into a public space. In addition, the layout of the courtyards was arranged to reference the Süleymaniye Mosque. Alsaç referred to the Manifaturacılar Retail Center as a structure that did not imitate Western examples but reached syntheses unique to Turkey. An example of the reflection of culture on form, the design of this bazaar has achieved a synthesis unique to Turkey by equipping the traditional bazaar with functions for the needs of the day and using contemporary Western construction methods [17]. Inspired by traditional bazaars such as the Grand Bazaar and the Spice Bazaar, where merchants gather, these courtyards with local codes modernize the tradition by transporting it to the present. The courtyards and the masonry lattices on the façade are local elements that have been modernized to reflect the theme of introversion that has shaped traditional architecture. The small exposed concrete balconies on Block 1 and Block 4's facades also refer to the traditional bay windows of Turkish houses (Fig. 8c). Furthermore, between Block 1 and 2, there is a shadirvan, a traditional motif made of concrete material with a contemporary interpretation to collect the courtyard's water (Fig. 5). The shadirvan is impressive in that it contributes a local variation to Brutalism's relationship with art.
The bazaar is a successful example of post-war architecture-art dialogue, with eight plastic works, including the shadirvan (Fig. 9). A small competition was held for each artwork based on integrating the bazaar with art. Three artists were invited to submit proposals for each work, thus organizing an invited competition involving 24 artists. The specifications prepared by Tekeli were sent to the artists [21]. Architects determined the works’ locations to be in public spaces such as courtyards and building facades facing boulevards, and the theme was left to the selection of the artists. The idea of integrating works of art into the design of the bazaar emerged with Tekeli’s proposal. The calligraphy works of Karahisari and the stained glass works of Sarhoş İbrahim at Süleymaniye Mosque inspired the inclusion of contemporary art in modern Turkish works [25]. In this context, dialog between art and architecture was re-established in the MRC and contemporary art in the 20th century, inspired by the traditional.

Manifaturacılar Retail Center, art works; (a) mosaic panel by Bedri Rahmi Eyüboğlu, (b) marble fountain plastic by Yavuz Görey, (c) mosaic panel by Bedri Rahmi Eyüboğlu, (d) stone bas-relief by Ali Teoman Germaner (authors archive, 2022)
Sevil Bursa, a board member of the cooperative, was the chairman of the competition selection committee, including Doğan Tekeli [25]. As a result of the competitions, an emblem representing the bazaar was designed by Kuzgun Acar, a stone bas-relief by Ali Teoman Germaner, a marble fountain by Yavuz Görey, a ceramic panel by Füreya Koral, and mosaic panels by Bedri Rahmi Eyüboğlu, Eren Eyüboğlu and Nedim Günsur [21].
“Birds” metal relief by Kuzgun Acar stands out among these artworks as an object that represents the long-standing image value of the bazaar (Fig. 8d). The competition specifications for this artwork requested a relief to represent the bazaar on a 6 × 11 meter exposed concrete panel on the boulevard façade of Block 1. The name of the bazaar was also expected to be included on the panel and to present a harmonious composition with the relief. Inspired by the surrounding Ottoman urban texture, Acar utilized the Ottoman tughra in this relief and created a composition with iron material. With a similar approach, the material choices of Ali Teoman Germaner’s work titled “Abstract Composition” on the entrance façade of the fifth block are in harmony with the surrounding texture. Germaner used natural stones in the form of ashlar, referring to the masonry texture of the Zeyrek (Pantokrator) Cistern dating back to the Byzantine Era and located directly opposite the artwork (Fig. 9d) [37]. Each of the contemporary works by Turkish artists in the MRC enhances the plastic effect of the space and provides the citizen with the historical value of the collaboration between architecture and art in the 1960s.
Günay Çilingiroğlu graduated as an architect from Istanbul Technical University in 1961 and completed an internship in Italy between 1961 and 1962. Çilingiroğlu’s educational years coincided with those of Rolf Gutbrod, was in charge of the ITU. Muhlis Tunca graduated from the Faculty of Architecture at Sapienza University of Rome in 1960. After receiving his PhD from the same university, he returned to Turkey and began working as an architect. Pier Luigi Nervi, known for his reinforced concrete structure designs, was an adjunct professor of materials and construction at this university between 1946 and 1962 [38]. Nervi’s approach, which in his lectures explored the relationship between “esthetics and technology” through reinforced concrete structures, would likely have shaped Tunca’s architectural character. The similarity of Çilingiroğlu and Tunca’s architectural approaches due to their education and experience abroad has led to a harmonious, long-lasting partnership and enabled them to create brutalist examples for Turkey that bordered on the experimental. The Istanbul Reklam Building and the Tercüman Newspaper Office (1974, Istanbul) are the bestknown examples, where “concrete” is once again approached boldly in the combination of material, technique, and form. Karaköy Trade Center (1978, Istanbul), Gürsel House (1984, Istanbul), and ERG Headquarters Building (1989, Ankara) are other works known for their effective forms [39].
Istanbul Reklam Building, located on the corner parcel at the intersection of Nuru Osmaniye Street and Bab-ı Ali Street on the Historical Peninsula, was designed by Günay Çilingiroğlu and Muhlis Tunca and was built between 1968 and 1974 (Fig.10). Süheyl Gürbaşkan, the founder of the Istanbul Reklam Building, who wanted to design an advertising agency through a competition, applied to the Chamber of Architects to hold the first private sector competition in Turkey. Upon receiving a positive response to the application, the Union Chamber of Architects and Engineers of Turkey assigned Apdullah Kuran and Vedat Dalokay to organize the project competition. The competition was announced in newspapers. A book was also printed and distributed to competitors to explain the purpose of the advertising agency, the expectations from mass design, and the working order [40]. The competition was announced on September 15, 1968, with a one-month application period ending on December 16, 1968. The announcement details the architectural program, the competition jury, awards, and rules. Accordingly, the architectural program includes graphic announcement services, type-offset printing houses, film-television facilities, radio-sound studios, color film laboratories, plexiglass-neon ateliers, filming-production plateaus, projection rooms, and electronic study centers [41]. In the results of the competition, Günay Çilingiroğlu and Muhlis Tunca won the first prize, Şandor Hadi and Sevinç Hadi won the second prize, and Saltuk Karabece won the third prize [42]. In the middle of the project site is the Mahmud Nedim Pasha Tomb, which is a historical monument. The winning projects in the competition were all oriented toward the “C” shape surrounding this tomb, per the zoning plan [43]. Although there are significant differences in the approaches regarding esthetic value and functionality of plan solutions, the common instinct is to provide a view of the street and create a distinctive image on the corner parcel. The winning project is the most successful in capturing image value. It stands out due to its brutalist quality, which was achieved through the effective use of environmental data and honesty and by exposing the material and structural elements (Fig. 11).

Location of the Istanbul Reklam Building (visualization by authors based on aerial photograph dated 1976 [27])

Istanbul Reklam Building plan (drawn and visualized by the authors based on [43])
To better understand the background of this brutalist approach, it is helpful to analyze the research of its founder, Gürbaşkan, on this subject. Gürbaşkan undertook two technical trips to East Asia and South America in connection with the new construction after the finalization of the competition. He was particularly impressed by the facilities of “Dentsu Advertising”, which he had the opportunity to visit and examine working principles during his trip to Japan. The Dentsu Building was remarkable for being the first building designed according to the needs of an advertising company at that time [40]. Gürbaşkan stated that the architect of the Dentsu Advertising Building was a prominent Japanese architectural firm; İpek Türeli also mentioned that this architect was Kenzo Tange in her article “Architecture as Advertising” [44]. The fact that this building, which was taken as a role model, was a brutalist work is also reflected in the architectural style of the Istanbul Reklam Building. The Dentsu Building, built in 1960, was the first building in Tokyo city planning [45]. Although the Dentsu Building is not similar to the Istanbul Reklam Building in terms of form, it is identical in its use of the ground floor and the points where the structure is clearly displayed. In the Dentsu Building, the ground floor is almost completely emptied and open to pedestrian circulation; users can experience this space by viewing the floor beams (Fig. 12). Similarly, using the ground floor of the Istanbul Reklam Building is significant for establishing a relationship with urbanites. The cantilevers’ floor beams facing the street are visible, and the interior spaces have an open ceiling structure (Fig. 13, Fig. 16). During his second visit to Brasilia, Gürbaşkan met with Oscar Niemeyer and his colleagues, who were known for their brutalist designs, and had the opportunity to discuss the constructive aspects of the new building to be built in Turkey [46].

Dentsu Advertising Office Building [47]

Dentsu Advertising Office Building [47]
Construction of the project began on July 8, 1969, after obtaining a building permit, and the foundations were laid on August 15, 1969 [48]. Erol Gönen prepared the building's static project. Şükrü Özkök and Haydar Koç carried out the wood formwork [46].The site of the Istanbul Reklam Building is situated in a corner parcel, allowing it to exemplify memorability as an image, as Banham outlined. The image value of a building is not only due to the success of its location. This memorable image is also created by the overflow of fragmented masses onto the street, the transparent structure that is easily visible from the outside, the concrete emphasis on the facade, and the prominent structural elements (Fig. 14). According to the literature, architectural historian Metin Sözen supports this idea and defines the Istanbul Reklam Building as a successful brutalist example in its attempt to integrate with the West in terms of its contribution to the urban environment and its accurate reflection of the movement to which it belongs [10]. Banham’s second principle, which is the clear exhibition of structure, appears in the façade design with clearly visible vertical constructive elements. This effect is reinforced by the exhibition of the floor beams of the cantilevers oriented toward the street and the eaves of the upper floor terraces. Atilla Yücel notes that this building, whose structural elements are visible, appears as a sculptural, “dematerialized” thin membrane that comprehends the exterior space rather than the interior (Fig. 15) [11]. The interior ceilings display the flooring’s structural elements; there are examples of ribbed and cassette slabs. Such an appearance adds a modern and characteristic feature to the atmosphere (Fig. 16).

Istanbul Reklam Building façade and column-beam detail from the entrance hall [authors archive, 2022]

View of the Istanbul Reklam Building [Irexpo introductory booklet, authors archive]

Istanbul Reklam Building interior spaces [Irexpo introductory booklet, authors archive]
The principle of the valuation of materials as found can be observed in both the facades and interiors of the Istanbul Reklam. The interior spaces’ design and façade adhere to Banham’s material principles. Concrete was used in the interior for the ceiling beams, divider walls, and columns (Fig. 16). Although paint is applied, especially on the columns, traces of wood formwork are still visible. The façade features exposed concrete solid walls modularly divided with visible traces of wood formwork (Fig. 14). Şevki Vanlı describes this approach in the façade design as “new proportions were born with fullness, emptiness, depth, and divisions, and a unique texture, a tension taken place” [49].
Istanbul Reklam Sitesi presents a different example of the localization of Brutalism according to regional and cultural values. Respect for historic buildings, local building bylaws, and conservation laws played the most dominant role in the design process. In the 1960s and 1970s, conservation awareness increased in Turkey. This approach directly impacted architecture and urbanism, particularly by introducing conditions to protect historical monuments in project competitions and including conservation areas in urban planning [17]. The Istanbul Reklam Building is also located in a historical area. Opposite the project site is the Cezeri Kasım Pasha Mosque, with the Mahmud Nedim Pasha Tomb located in the center and the Cağaloğlu Turkish Bath nearby (Fig. 11). For this reason, the competition’s principles emphasized the preservation of the Mahmud Nedim Pasha Tomb and the importance of a healthy relationship with the new building. A noteworthy detail is that a 1/100 scale model of the Mahmud Nedim Pasha Tomb was made by a sculptor and given to competitors [40]. This detail indicates the significance of environmental values and historical monuments’ respect. The evaluation criteria in the jury report published after the competition emphasized the potential for the new building and the tomb to live in harmony without losing their original characteristics and to add mutual architectural value [43]. According to Gürbaşkan, one of the purposes of organizing the competition was to add monumental image value to the tomb [40]. In the winning project, not only did the design create an image of the city, but the historical tomb it surrounded gained urban value together with the project. Furthermore, the Istanbul Reklam Building represents the highest level of reinforced concrete construction technology available in Turkey at the time and is an example of local construction practices.
Metin Hepgüler founded the MHM International Architecture Office after leaving the SITE Architecture Bureau, where he partnered with Doğan Tekeli and Sami Sisa. Istanbul Officers’ Club, which he designed after the partnership, is one of Turkey's most prominent examples of Brutalism. His architectural approach was characterized by a strong brutalist influences from the 1960s to the 1980s. In 1969, he founded the Architects Association Limited in Switzerland. With this step, Hepgüler increased his international activities, and projects were built in many countries, including Switzerland, Libya, Saudi Arabia, France, and Bulgaria. Among these projects, Casino Zurichhorn (1961, Zurich) and Special Training University (1969, Saudi Arabia) stand out for their brutalist approach. Since the mid-1980s, he has incorporated technological developments into his design approach, moving toward the Late Modern style, and his most recent buildings are located in Istanbul: BMW Group Dealership Complex (1997, Istanbul), Renault Showroom and Maintenance Center (2006, Istanbul), and Has Automotive Mercedes-Benz Project (2007, Istanbul) [32].
In 1967, the Ministry of National Defense organized four architectural project competitions, including the Istanbul Officers’ Club competition [50]. Istanbul Officers’ Club includes units such as hotel, meeting halls, exhibition spaces, restaurants, shops, and a multi-story car park to serve the Ministry of National Defense [51]. The project competition was announced in newspapers on March 19, 1967, and the deadline for participation was June 20, 1967 [52]. The competition results were declared on July 22, 1967; the first prize was awarded to Metin Hepgüler, the second prize was awarded to Yüksel Okan, and the third prize was awarded to Nurten Müftüler and Yalçın Müftüler [53]. According to Hepgüler, most of the projects participating in the competition followed a horizontal approach parallel to the Hilton Hotel, while his design rose vertically against the hotel. In addition, since a new horizontal mass to be located next to the Harbiye Military Museum would create a “wall” effect against the Bosphorus, he chose to rise vertically (Fig. 17) [54]. The hotel complex was designed away from the Harbiye Military Museum, preserving the green urban fabric between the two buildings.

Location of the Istanbul Officers’ Club (visualization by authors based on aerial photograph dated 1987 [27])
According to the jury evaluation, Hepgüler’s design was found to be successful primarily in terms of site plan layout decisions and outdoor use. The placement of the general units of the hotel (cinema, wedding hall) in the most suitable area in terms of topography while preserving the existing green texture was found to be favorable. The design of the wedding hall and cinema entrances separated from the hotel's main entrance, the swimming pool’s location, and its connection with the hotel were the other positive points of the project. Moreover, the jury also found that the layout of the bed floors and their view-dominating position were quite successful. The deficiencies mentioned in the jury report are, in general, insufficient car parking, lack of service elevators on the bed floors, insufficient space for some functions, and inadequacies in the interior design of some sections [50].
Construction of the Istanbul Officers’ Club began on September 25, 1968 and lasted until the early 1980s [55]. The contractor firm was OBA Construction for the first three to four years. As a result of the highcost increase, construction activities were carried out by TİMLO, a subsidiary of Türkiye Emlak Kredi Bank 54, 56].
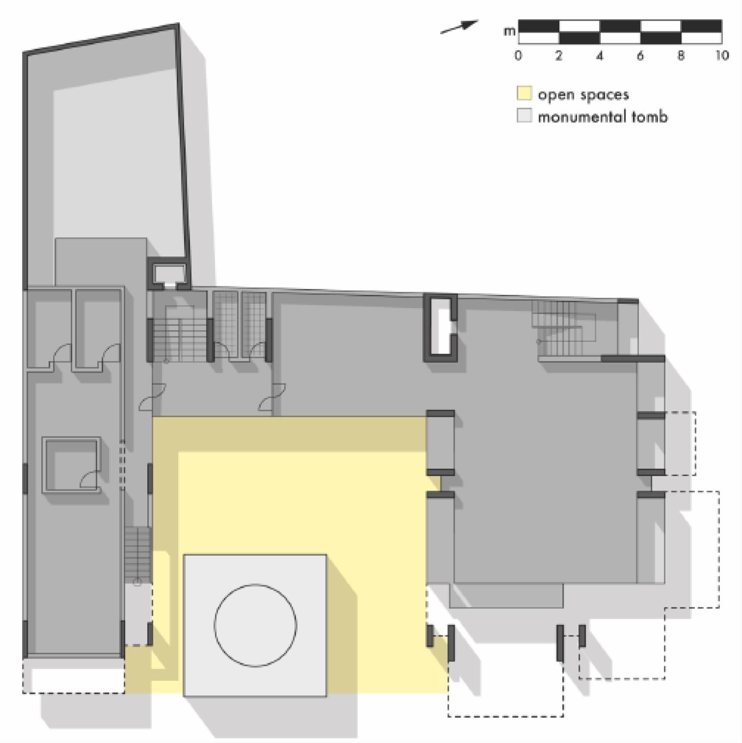
The panoramic view is considered a vital design input to the plan layout. The direction of the curtain walls that form the hotel block’s fundamental structure and the rooms’ orientation is referenced from the Bosphorus view of Istanbul (Fig. 18) [32]. The Istanbul Officers’ Club has 27 floors: four basement floors, three ground floors, one mezzanine floor, 18- bed floors, and a roof restaurant. The swimming pool and family meeting rooms were located on the belowground terraces at a different level from the museum garden [51]. As the hotel complex is located on sloping land, the living units are placed on different levels by terracing. Terraces, galleries, and staircases provide the relationship between the levels.

Istanbul Officers’ Club plan (drawn and visualized by the authors based on [32])
Istanbul Officers’ Club is one of the most prominent brutalist figures in the 1970s Istanbul and is a manifestation of the principle of memorability as an image. The fact that it is the first high-rise building to be constructed with exposed concrete-curtain walls composition applied in Turkey provides this image. (Fig. 19) [32]. In the local literature, Metin Sözen mentions a conscious brutalist attitude when referring to the Istanbul Officers’ Club [10]. Similarly, Afife Batur characterizes the Istanbul Officers’ Club as a late and advanced example of Brutalism in Turkey [57]. Enis Kortan interpreted Hepgüler’s architecture as “a more brutalist attitude within the modern movement”. Hepgüler confirmed Kortan’s interpretation and stated that he primarily aimed to create an image of plastic appearance in his architecture. Regardless of the choosing materials, the plastic appearance should be based on function and ecology [54]. Istanbul Officers’ Club fulfills Banham’s principle of memorability as an image by creating a strong image in urban memory as one of the first models of the brutalist style and one of the first skyscrapers of the period.

Istanbul Officers’ Club façade and balcony details [authors archive, 2024]
Istanbul Officers’ Club exemplifies the second principle of Brutalism, the clear exhibition of structure, through the concept of “formal legibility of the plan” Banham included in his New Brutalism article [5]. This is achieved by the layout of the bedrooms and their reflection on the form. Each room is visible on the building’s exterior, which is surrounded by curtain walls (Fig. 19). The bedroom floors have 12 bedrooms, and a central lift, staircase, and hall provide circulation. Curtain walls oriented in two different directions divide the rooms into groups of 6. In this context, the two-way brute curtain walls, the loadbearing main structure, can be visible from the outside and are shaped following Banham’s principle of clear exhibition of the structure. The legibility of the formal plan of the Istanbul Officers’ Club, based on this structure, is comparable to that of the Stad Hotel. The Stad Hotel is a significant brutalist landmark in Ankara, designed by Doğan Tekeli, Sami Sisa, and Metin Hepgüler in 1965 [58]. Hepgüler played an influential role, especially in the technical phase of Stad Hotel, and even developed this curtain wall system in the structure and transferred it to the Istanbul Officers’ Club. However, a soil survey was carried out due to the unstable soil on which the Istanbul Officers’ Club was to be built. During that period, the Japanese engineers who constructed the Bosphorus Bridge re-evaluated the project, and the curtain wall thickness was adjusted to ensure that it did not exceed 40 cm [54].
Another principle of Banham, the valuation of materials as found, comes to the fore in using raw concrete in the Istanbul Officers’ Club (Fig. 19). Since readymixed concrete technology had yet to be developed for the Istanbul Officers’ Club, concrete was produced by setting up a batch plant on the construction site. Long-term vibration was used to achieve high-quality facades surfaces. Formwork plans were created for the wooden traces that give a raw esthetic to the facades. A balanced horizontal and vertical pattern was designed. The building has been put into use with exposed concrete surfaces both on the facades and in the interiors and rooms, except on the ground floor; with this feature, it is one of the few works in Turkey in the context of using raw materials [54]. Although unplastered paint is applied on the facade due to its current use, traces of formwork can still be seen clearly. The linear concrete canopy at the hotel's entrance reinforces the brutalist effects through its material and structural configuration.
The localization of Brutalism in the Istanbul Officers’ Club can be examined through cultural codes reflected in the form, the use of local materials, and the integration of architecture and art through the works of Turkish artists. The provision of “privacy” as a requirement of local and cultural codes influenced the form of the hotel. The balconies of the rooms on the bed floors were designed so that guests could not see each other, and the hotel’s swimming pool was separated from the surrounding area and located on a terrace below ground. (Fig. 18) The hotel’s lobby is particularly noteworthy for its use of raw materials, structural ceiling details, and works of art. The lobby ceiling is furnished with triangular concrete prisms. Some of the dividing walls were covered with Afyon marble, a local material (Fig. 20a). A mosaic panel identified as belonging to Turkish artist Atilla Galatalı, is located along one wall, creating a unique atmosphere (Fig. 20b). During the technical visit to the hotel, in addition to the artwork in the lobby, two more mosaic panels designed by Galatalı are identified under the hotel entrance canopy, and other ceramic panels designed by Turkish artist Oya Koçan are located on the walls of the stairs leading to the event hall (Fig. 20d). These works are unique examples of the Turkish modern architecture-art dialog (Fig. 20c).

Istanbul Officers’ Club art works; (a) Afyon marble wall, (b) mosaic panel by Atilla Galatalı, (c) ceramic panel by Oya Koçan (d) mosaic panel by Atilla Galatalı [authors archive, 2024]
After World War II, the International Style was effective in Turkey until the 1960s. The 1950s was a universalist and rationalist period in which Turkish architecture was shaped mainly by external influences, regardless of technological, economic, social, or environmental data. The extensive urban transformations ignored historic buildings and environmental values as part of public works. The 1960s and 1970s were a period of widespread conservation awareness following the losses of architectural heritage experienced in previous periods [3]. Local values began to be affirmed in the revisions of Modernism that developed against the International Style. It is possible to observe the prominence of these values in Turkey’s integration of Brutalism through the three examples discussed in this study. The Manifaturacılar Retail Center and the Istanbul Reklam Building are located in a historic district, and their design approaches are to preserve and maintain historical heritage. Under the influence of regional and cultural codes, the traditional courtyard typology was modernized in the Manifaturacılar Retail Center. In addition, the bay window and shadirvan, which are traditional building elements, were modernized and integrated into the brutalist design. Istanbul Officers’ Club, the concept of privacy influenced the placement of the bedrooms and the basic form of the hotel according to cultural codes. Local materials were used in all three building examples discussed in this article. Reflecting the high level of concrete construction techniques of this period, the Istanbul Reklam Building is significant. It is possible to see the localization of the art-architecture collaboration of the 1960–1980 period in the Manifaturacılar Retail Center and the Istanbul Officers’ Club, which featured the works of Turkish artists.
Following the Second World War II, the influence of the International Style in architecture eventually bled out, and revisions of Modernism appeared. Brutalism, which emerged as a discourse against all architectural approaches arising from traditionalism among the young generation in England in the 1950s, was fundamentally influenced by Le Corbusier’s esthetics of exposed concrete and Mies van der Rohe’s approach to structure. Brutalism originated in England, theoretically and in terms of its first practice, and spread worldwide over time. Concurrent with the globe, its influences have been reflected in Turkish architecture since the 1960s.
Architecture in Turkey was predominantly influenced by state ideology until the 1950s. The changing political conjuncture between 1960 and 1980 supported democratization and pluralism in architecture. Through this process, the presence of foreign architects on the education staff was effective in recognizing modern architecture. Specifically, the lectures given by Rolf Gutbrod and Jürgen Joedicke significantly impacted the development of Brutalism in Turkey. Furthermore, the transfer of Brutalism has been facilitated by Turkish architects studying architecture abroad, freshly graduated architects' tendency to intern in foreign firms, and by following current foreign architectural publications. Within this context, Brutalism in Turkey has achieved a synthesis beyond imitation; successful samples of localized architecture have emerged with this assimilation through political, social, and cultural components. Within the framework of this article, 15 brutalist and brutalist-influenced buildings in Istanbul were identified. Among these buildings, Manifaturacılar Retail Center, Istanbul Reklam Building, and Istanbul Officers’ Club were identified as the most qualified ones to localize Brutalism.
All three examples in the Istanbul case study were implemented after winning an architectural competition. This model was the preferred method for constructing important buildings in Turkey in that period. In each of the three projects, urban data were analyzed quite well, and the form layouts were designed based on the results of these analyses. Smithson’s idea of establishing strong urban relationships and social networks is emphasized in the cases discussed in this article. In particular, the Manifaturacılar Retail Center and Istanbul Reklam Building were designed in accordance with the “responsibility” principle of Brutalism, with a layout that respects historical monuments and the scale of the existing built environment. The artworks in the Manifaturacılar Retail Center and Istanbul Officers’ Club are an essential indicator of the architecture-art collaboration of the period.
Within the scope of this study, the three buildings are prominent symbols of Brutalism in Istanbul and have a memorable image. These buildings, built with great devotion far beyond the construction technologies of the period, clearly exhibit their structure. Today, these buildings exemplify, albeit with minor modifications, the use of the material in its raw form, both interiors and exteriors. Traces of wood formwork can still be visible on the facades where paint was applied without plaster.
In this geography, Brutalism has achieved a unique synthesis by localizing within the context of an approach to the historical environment, regional and cultural codes, the use of local materials, the modernization of traditional building elements, and the integration of architecture with the works of Turkish artists. This article includes Istanbul as architectural evidence of the expansion of global movements and local diversification.