
Figure 1
Payerbach in 1854 with railway line and viaduct in the background [Courtesy of Ludwig Czerny and Carl Ritter von Ghega].

Figure 2
Northern aspect of the Landhaus Khuner (1928–30) [Photographs by Martin Gerlach held in the Graphische Sammlung Albertina, Vienna].

Figure 3
Western aspect of the Landhaus Khuner, with access path [Photographs by Martin Gerlach held in the Graphische Sammlung Albertina, Vienna].

Figure 4
Plans and elevation of the Landhaus Khuner [Courtesy of Heinrich Kulka].

Figure 5
Western elevation showing the summer access route up to the Landhaus Khuner [Photographs by Martin Gerlach held in the Graphische Sammlung Albertina, Vienna].

Figure 6
Southeastern aspect showing the door for winter access [Photographs by Martin Gerlach held in the Graphische Sammlung Albertina, Vienna].

Figure 7
Vestibule of the Landhaus Khuner [Photographs by Martin Gerlach held in the Graphische Sammlung Albertina, Vienna].

Figure 8
Main living room/hall with its glazed exterior wall/doors and seating arrangement [Photographs by Martin Gerlach held in the Graphische Sammlung Albertina, Vienna].

Figure 9
Interior view of the main hall, showing the lower areas and the gallery above [Photographs by Martin Gerlach held in the Graphische Sammlung Albertina, Vienna].

Figure 10
Southwest aspect of building showing its roof terrace [Photographs by Martin Gerlach held in the Graphische Sammlung Albertina, Vienna].

Figure 11
Male client’s office/study with altered view through its picture window [Courtesy of Heinrich Kulka].

Figure 12
Male client’s office/study with unaltered view through its picture window [Photographs by Martin Gerlach held in the Graphische Sammlung Albertina, Vienna].

Figure 13
View from protruding guest room on upper floor [Photographs by Martin Gerlach held in the Graphische Sammlung Albertina, Vienna].

Figure 14
Daughter’s bedroom with its alcove and sink located above the staircase rising beneath [Photographs by Martin Gerlach held in the Graphische Sammlung Albertina, Vienna].

Figure 15
The construction site hut for the Schwarzwaldschule I project (1912–13) was built of wood with a shallow roof to accommodate for the regional alpine conditions of the Semmering [Drawings of these projects by Adolf Loos held in the Graphische Sammlung Albertina, Vienna].

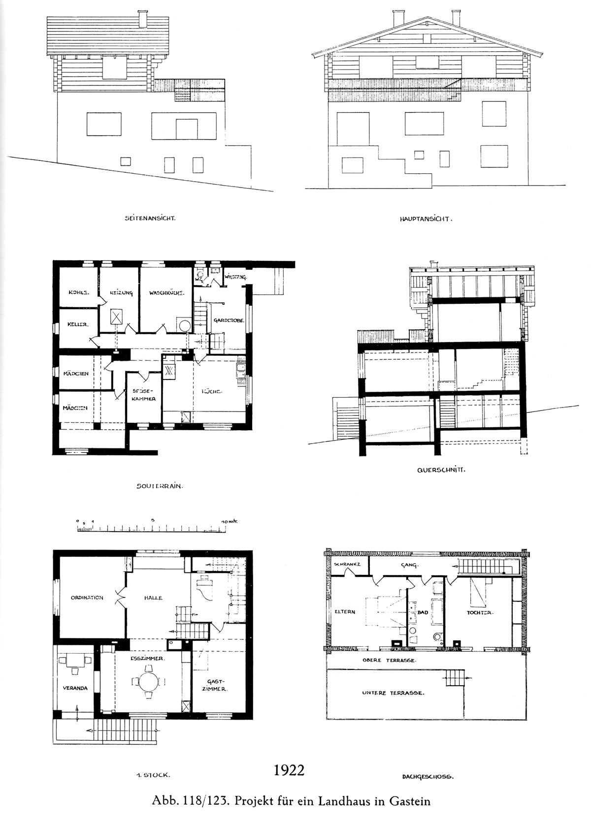
Figure 16
Unrealized proposal for a vacation house in Gastein (1922). Here the fusion of the urban-rural disparity is articulated in the design and the building uncannily pre-empts both the cubic form of the Villa Müller and the regional materials of the Landhaus Khuner [Courtesy of Heinrich Kulka].

Figure 17
Interior perspective of a hall with inglenook of an undated project by Adolf Loos. Colour, texture and materials were very important for him yet are often lost in black-and-white photographs [Drawings of these projects by Adolf Loos held in the Graphische Sammlung Albertina, Vienna].

Figure 18
The elevation of a vacation home for Leo Prinz Sapieha shows a pitched roofed structure (1918). The location for this unrealized project is unknown [Drawings of these projects by Adolf Loos held in the Graphische Sammlung Albertina, Vienna].

Figure 19
The section shows a dining area within a galleried hall [Drawings of these projects by Adolf Loos held in the Graphische Sammlung Albertina, Vienna].

Figure 20
The plan shows a strikingly similar interior arrangement to the later Landhaus Khuner [Drawings of these projects by Adolf Loos held in the Graphische Sammlung Albertina, Vienna].

Figure 21
Dining room of the Khuner apartment in Vienna (1907) [Photographs by Martin Gerlach held in the Graphische Sammlung Albertina, Vienna].

Figure 22
Living room of the Hirsch apartment, Pilsen, now in the Czech Republic (1907) [Photographs by Martin Gerlach held in the Graphische Sammlung Albertina, Vienna].

Figure 23
Garden room of the remodelled Hirsch apartment, Pilsen (1929) [Photographs by Martin Gerlach held in the Graphische Sammlung Albertina, Vienna].

Figure 24
As an icon of architectural Modernism the mute cubic form of the Villa Müller (1930) bestows very little of the interior and is situated on a sloping suburban site overlooking Prague [Photographs by Martin Gerlach held in the Graphische Sammlung Albertina, Vienna].

Figure 25
Adolf Loos inspecting logs, wearing his city clothes and standing in the snow [Photographs by Martin Gerlach held in the Graphische Sammlung Albertina, Vienna].
