There is a high incidence number of solar radiation occurring in a building's façade in tropical climates, causing the thermal comfort in the rooms to become too hot. Buildings in tropical climates usually receive massive solar radiation, which causes overheating and large energy consumption spent on cooling these buildings, so, finding a solution to balance between aesthetics and energy is an issue that must be studied in depth [1].
This study attempts to discuss the effectiveness of DSF and electrochromic glass materials in controlling heat as well as its effectiveness as a method of energy conservation and as a form of evidence that glass materials can be applied suitably to serve their purpose and functions, even in tropical climatic areas. In the study of Double Skin Façade (DSF) and Electrochromic Glass Applications in Tropical Buildings, the following problems are formulated:
What would be the most fitting application of double skin façade in the tropics?
How can we allow for double skin façade to work better in its integration with electrochromic glass?
What method should be applied so that glass materials can be used in the tropics?
How can we prevent radiation and overheating caused by glass materials from occuring?
The purpose of this research is to reveal what kind of treatment would be appropriate when applying double skin façade so that this material can be effectively used in buildings in tropical climates, and to find out whether or not the application of electrochromic glass increases effectiveness by integrating it with the double skin façade to obtain aesthetic aspects without sacrificing thermal comfort and wasting energy. Based on the points mentioned above, it can be concluded that the objectives of this study are to obtain the following information:
To discover the appropriate treatment in the application of double skin façade.
To learn the appropriate placements of electrochromic glass in buildings in the tropics.
Sabrina Barbosa evaluated the influence of the main design parameters on the natural thermal behavior of a ventilated building with Double Skin Façade (DSF) in tropical climatic conditions [2]. This discussion begins with the discourse of DSF (Double Skin Façade) material, which is an architectural element that recently gained recognition in modern office buildings constructions as a solution to a highly glossy façade in order to reduce the annual load on HVAC systems. Calculations are done on parts of the building that allow light to enter, as well as calculations of the amount of light that enters and energy obtained. Temperature calculations with diagrams are carried out to calculate temperature differences over time [3].
A case study conducted in Brazil that aimed to prove the effectiveness of using DSF is relied on as the standard for this study, in terms of maximizing thermal comfort based on several technical considerations in the forms of space placement, space function, height and area of 2 windows / glass, and glass façade placement within spaces that require more light.
The chances of DSF being a good enough choice pretty likely, for the results of the optimized model case study show that DSF integration is capable of achieving about 70% of peak hours within an acceptable level of comfort [4]. Although office buildings will still require other devices and techniques for cooling during the heights of dry season, the incorporation of the DSF as part of a mixed mode ventilation strategy, potentially provides significant impact in correlation to energy consumption.
Marco Casini wrote a journal in 2015 which contains innovations in the application of glass/windows in order to meet the fundamental goals of achieving aesthetically pleasing, visually appealing, natural light aspects, while also creating innovations to make this system controllable in terms of effective energy expense [5]. This system, titled smart window, allows varying amounts of heat (SHGC) and light (VLT) to penetrate the glass surface as needed, while maintaining outward vision. This paper offers an analysis of the various types of glass dynamics on the market, with passive and active controls, illustrating the potential uses and benefits that can be achieved in energy efficiency, environmental comfort, and good-quality architecture in both newly-constructed buildings and in requalified existing buildings [6]. As an example of data obtained surrounding electrochromic glass, there are several advantages including;
Up to 60% reduction in artificial lighting requirements by increasing window light transmission, resulting in increased visual comfort for occupants and reduction in energy costs
ability to adjust lighting levels in indoor environments by maintaining transparency and exterior vision, resulting in greater satisfaction for residents, who would get the opportunity to enjoy outdoor views both during the day and at night (even in the darkest outdoor situations, with less than 2% visible light transmittance (VLT), the glass is still transparent)
Reduction of dry season and wet season air conditioning (HVAC) requirements thanks to the ability to control heat gain from solar radiation with the consequence of reduced energy costs for management and installation; the latter would be due to the possibility of switching to less power (up to 25% less power required) among many other advantages.
The conclusion drawn from the study above is that it shows how the use of dynamic windows is able to bring many benefits in terms of energy efficiency, environmental comfort and architectural quality of buildings. However, static solutions with selective and fixed glass or cellular layers do not allow for optimal gain and sunlight to permeate fully throughout the year, thus this solution is somewhat limiting terms of design phase, the size of glass components.
Solutions with dynamic automatic shading coupled with the building automation system offer excellent energy performance, but high in installation, maintenance and management costs. The electrochromic system has also proven to be both more comfortable with respect to static systems, due to a significant reduction in energy consumption for lighting and artificial air [5].
A new double-skin façade with system-driven integrated-shadows has been investigated, the process of definiting its energy performance began with measuring the optical properties of the material and its implementation on computational fluid dynamics analysis, validated by comparison with data from similar experimental tools [6]. The results of this thermodynamic-behavior-study show good performance in both wet and dry seasons, whereas traditional double-skin façade show weaker performance due to overheating on the gaps.
Energy analysis shows a strong effect of the spectral properties of each component; high reflection from the shading device allows for satisfactory sunlight absorbance in the wet season and a considerable reduction of cooling load in the dry season. Dry season simulations demonstrate a good system behavior caused by shading levels contribution being high and open configurations that inhibit overheating, which is usually one of the main constraints of using double skin façade in warm climates [7].
The performance of the façade in comparison to traditional coverings such as glass and frosted walls in an office space in central Italy; Research results show that throughout the year, the proposed façade significantly improves the energy behavior of the building, particularly when configurations with forced, winter convection, is taken in to consideration. In this regard, in reality, the joint contribution between air preheating and increasing the thermal resistance of the gaps makes the performance of double skin façade very fascinating: comparisons with opaque walls show energy savings of up to 60 kWh per year per square meter façade. When differences with the standard glazed surface were analyzed, the resulting energy increase weakened, yet comfort increased [8].
The approach used in this study is qualitative approach, namely, the data sought is in the form of descriptions of the lighting and thermal conditions on 3D building simulations. The analysis is carried out by describing the findings, which is then arranged cohesively into a narrative and theory. Next, the relationship between lighting and thermal conditions both inside and outside the building in regards to the double skin façade elements and the glass walls in the 3D simulation of the building is sought for, so that the light and thermal qualities in the building if double skin façade and electrochromic glass are to be applied can be concluded.
Research is done by first creating a building model with SketchUp, then conducting lighting and ventilation simulations, as well as energy testing with Revit software and window 7.7, then compiling the data into a narrative. After the data is obtained, data processing is carried out by describing incoming light intensity, and seeking for the relationship between double skin façade, electrochromic glass, light distribution and thermal comfort, along with making comparisons between how the buildings are before and after modifications, supported by theories from previous researches, and of materials used.
Data retrieval is simulated within the time range between 06.00 am to 5.00 pm. This is done to determine the different states of sun exposure angles in the building during different times of the day, which results in varying angles and intensities.
In this study there are several softwares used to simulate the building model, which are:
Revit Software
Revit is a computer software used for creating Building Information Modelling. Revit can be used to simulate building models in regards to lighting degrees in both indoor and outdoor settings. Aside from being able to simulate lighting from artificial sources/lamps, it can also simulate lighting created by natural sky/daylight.
Window 7.7 Software
Window 7.7 is a computer software used for calculating the lighting value upon a glass surface. The results of this study will be used to provide narrative and theory that serve as evidence of feasibility and provide recommendations for how to advance the methods used to install double skin façade as well as advance the use of electrochromic glass in tropical buildings.
Survey data is compiled into a list of information which is then qualitatively analyzed and the conclusions are to drawn. The steps taken are as listed below:
Editing: either it is presenting 2-dimensional or 3-dimensional images to serve as models based in field conditions (based on secondary data)
Simulate a 3D model with a SketchUp to determine what materials and which scope of the building is to be used.
Perform simulations with Revit and SketchUp and describe the simulation results.
The types of qualitative analyses in this research are:
Case Study Analysis, by making a description of the results of data compilation, displayed in the form of a narration, and conclusions are drawn from case study theories of similar phenomenons and similar researches, as the basis for simulation creations in this research.
Simulation Analysis, by simulating the building model and performing tests by making comparisons and examining the relationships between several research variables.
Indonesia has an average humidity of 85%, the average precipitation rate in Indonesia is between 2000–3000 mm per year, meanwhile, the wet season in Myanmar and the southern part of the Malacca Peninsula occur in mid-May to October. Throughout Thailand up to the coast of Indochina, the wet season occurs from October to January. Meanwhile, in the Philippines the wet season persists all-year-long. The sun's trajectory can reach a slope of 90°, the temperature ranges around 20°C, reaching the average temperature of 35°C. While the thermal comfort temperature in Southeast Asia ranges between 22.8–25.8°C, so, in order to achieve this, the aid of artificial ventilation, namely with air conditioning, is typically used, with the consequence of high electrical expense.
There are several settings on the location, day, month and year to simulate the circulation of the sun related to lighting and temperature.
Spaces that are decidedly studied, chosen in regards to the area and scope of the building along with the types of materials used in this simulation, can be seen in the building data below.
Sunlight settings are adjusted to simulate the sunlight intensity in the city of Jakarta, Indonesia, as a setting available in the Revit application
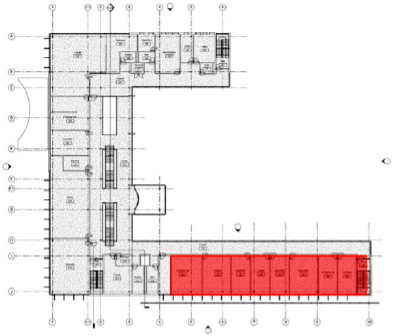
The building is a university / school building. The plan above (Figure 1) illustrates the shape of the simulated building and the orientation of this building. The room chosen as the test subject is located at the southern part of the building where the afternoon sun enters the room; this side of the building already has double skin façade applied.
Figure 1
Building Simulation Floor Plan

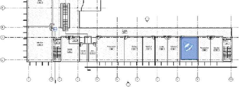
Based on Figure 2, it can be seen that the building faces south, presumably to maximize the entry of morning sunlight on this side, judging from the high amount of openings. On the side observed, namely the south side of the building, the afternoon sun can still enter even though the building has already applied double skin façade.
Figure 2
3D Simulation of Solar Circulation Line

Figure 3 shows the research position; on the part of the building that applies the double skin façade. Continuing the simulation with the software, the next object of research is the level of natural lighting that enters the room. The variables that determine the effect of double skin façade on building lighting quality are:
1. Double Skin Façade Double skin façade is a research variable whose effect will be proved based on its ability to decrease light intensity within a space.
Figure 3
Front View of Simulation Building

In Figure 4, the double skin façade with a second layer – which is placed on the outside of the building – serves as a shield against sun exposure from the South, which occur between 12.30 pm to 5.50 pm. The outer layer of this setup is composed of a perforated rectangular frame, resting on a steel frame structure separated from the main building. The double skin façade in this building simulation is made out of glass, with the aim of testing the effectiveness of electrochromic glass material.
2. The Building's Opening A building's opening serve as one of the crucial factors to consider when running tests in which the size of these openings determine the value of light intensity, thus affecting the light and temperature of the room.
Figure 4
Double Skin Model on Simulated Building

The opening of the building is a curtain of walls made out of glass, with a frame of 50 × 150 mm in size (see Figure 5). This wall has a height of approximately 11.4 metres, and stretches horizontally ± 38 metres in length.
3. Natural Light Source Natural light source variables are very important to know in advance, so that testing done may effectively configure the best results in terms of DSF placements and electrochromic glass placements, which will then be used to conduct intensive testing, which requires a location with intense sunlight hitting the studied spot.
Figure 5
Glass Walls

Natural light sources are produced based on sunlight and sky brightness. The position of the sun's trajectory in Indonesia based on the date, month, year and time of day can be seen in the sun path diagram (Figure 6) which describes the angles of the sun's altitudes. The studied light source of the sun is set on a date where the sun's intensity is quite massive, namely December 13, 2020.
4. Natural Lighting Quality To determine the effect of secondary skin as a shading device towards the quality of natural lighting in the simulated building space, measurements are made at several different spots to determine the intensity of natural lighting within the space using the render illuminance feature on Revit.
Figure 6
3D Simulation of Solar Rotation Line

Figure 7, shown in blue, presents the position of the measuring point of the Instruction Room; the measurement was taken on December 13th, at 12.30 pm. The room was chosen because of the ideal space size to see the distribution of usable sunlight.
Figure 7
Locations of Measurement Spots

After the required variables have been set, then a simulation of light intensity is carried out within the time span between 06.00 am to 5.00 pm.
After obtaining the results within this time span using the illuminance test as shown in Figure 8, thermal load test is then carried out in the same room.
5. Thermal testing Indoor thermal testing is carried out to compare effectivity between using ordinary glass materials and electrochromic glass.
Figure 8
Measurement Results in the Instruction Room at 06.00 am & 5.00 pm

Figure 9
Electrochromic Glass Wall Material

The results above (Table 1) are the simulation results of heating and cooling load data in the room when conventional glass materials are used.
Results of Thermal Measurement in a Room with Conventional Glass Walls
| Project Summary | Conventional Glass | Electrochromic Glass |
|---|---|---|
| Location and Weather | ||
| Project | Project Name | Project Name |
| Address | ||
| Calculation Time | Sunday, December 13, 2020 13:00 PM | Sunday, December 13, 2020 13:00 PM |
| Report Type | Detailed | Detailed |
| Latitude | −6.18° | −6.18° |
| Longitude | 106.83° | 106.83° |
| Summer Dry Bulb | 33°C | 33°C |
| Summer Wet Bulb | 28°C | 28°C |
| Winter Dry Bulb | 22°C | 22°C |
| Mean Daily Range | 8°C | 8°C |
| Area [m2] | Volume [m3] | Peak Cooling Load [W] | Cooling Air Flow [L/s] | Peak Heating Load [W] |
|---|---|---|---|---|
| 48 | 116.96 | 2.289 | 128.3 | −2 |
In order to draw a comparison, the glass material used on the double skin façade and the walls of the room is, decidedly, electrochromic glass, the specific type chosen being sageglass Climaplus Classic SR20 (dark tint), (Figure 10).
Figure 10
Results of Light Intensity Measurement

The results in Table 2 show the effect of using electrochromic glass in the simulation building; the amount of heat that must be removed from the room in order to achieve optimal air can be seen in the cooling load.
6. Ottv calculation: To further prove the credibility of evidence found regarding the effects of electrochromic glass application in a room, the building envelope is calculated. The variables needed to perform OTTV calculations are: The value of wall conduction, glass conduction, and glass radiation value.
Results of Thermal Measurement in a Room with Electrochromic Glass Walls
| Project Summary | Electrochromic Glass | Conventional Glass |
|---|---|---|
| Location and Weather | ||
| Project | Project Name | Project Name |
| Address | ||
| Calculation Time | Sunday, December 13, 2020 13:00 PM | Sunday, December 13, 2020 13:00 PM |
| Report Type | Detailed | Detailed |
| Latitude | −6.18° | −6.18° |
| Longitude | 106.83° | 106.83° |
| Summer Dry Bulb | 33°C | 33°C |
| Summer Wet Bulb | 28°C | 28°C |
| Winter Dry Bulb | 22°C | 22°C |
| Mean Daily Range | 8°C | 8°C |
| Area [m2] | Volume [m3] | Peak Cooling Load [W] | Cooling Air Flow [L/s] | Peak Heating Load [W] |
|---|---|---|---|---|
| 48 | 116.96 | 3.122 | 192.8 | −38 |
The equation for OTTV is as follows:
Aw = wall area [m2]
Af = window area [m2]
Ai = Aw + Af
Uw = Uvalue of wall [W/m2K]
Uf = Uvalue of window [W/m2K]
TDeq = Equivalent Temperature Difference [K]
SC Shading Coefficient ogf Window glass
SF Solar Factor [W/m2]
DT = Temperature Difference between exterior and interior design condition [K]
WWR = Window to Wall Ratio
The data needed to calculate the OTTV value are as follows:
| Wall area | 114 m2 |
| Glass area | 45 m2 |
| WWR | 0.39 |
| UW | 1.06 W/m2K |
| TDeq | 15 K |
| Uf | 2.4 W/m2K |
| DT | 3 K |
| SC | 0.67 |
| SF | 97.9 W/m2 |
The U Value and SC produced by 2 layers of electrocromic glass can be seen.
After being multiplied, the conduction value for the south-oriented brick wall is
After being multiplied, the conduction value for the south-oriented glass material is
After being multiplied, the radiation value of south-oriented glass material is
These results will be supported by discussions related to theories from existing researches. This research is aimed to perfect said researches, and thus provide an overview for future research.
In the application of double skin façade and electrochromic glass in tropical buildings through simulations run in the Revit software, research and discussion are adjusted to aforementioned problem formulations – whose topics surround the suitable position to apply double skin façade, and how the integration of DSF and electrochromic glass can be applied.
To answer the problems above, the simulation is carried out by adjusting the position of the simulated building, arranging the double skin facade to face South so that it enters the sun's trajectory between 06.00 am to 5.00 pm, which is made even more appropriate with the fact that the position of the sun in December tends to lean more towards the South; as a result, the building façade receives sun exposure from 06.00 am to 5.00 pm. This condition is overcome by installing double skinned façade system into the building and utilizing glass curtain walls as the building's first skin.
Results of Light Intensity Measurement in the Room
| Nr. | type of application | natural lighting [lux] |
|---|---|---|
| 1 | With Double Skin Façade | 352.7–25,764.7 |
| 2 | Without Double Skin Façade | 713–42,026.1 |
In the first study, a test simulation was carried out on the intensity of the light entering one of the rooms. The following results were found:
Based on the results obtained as shown in Table 4, the lowest average intensity in this simulated building is 325,51 lux and the highest average intensity is 19.416.64 lux. The intensity of natural lighting that enters the room is very sufficient to get the ideal intensity for the space in the building in the form of this university, the intensity produced is sufficient to illuminate the class with a large size, because the intensity in the majority of the space is in the range of 300 lux.
Results of Light Intensity Measurement
| hour | lowest intensity | highest intensity |
|---|---|---|
| 06.00 | 243.3 | 6,266.6 |
| 07.00 | 395.6 | 11,967.4 |
| 08.00 | 360.3 | 17,275.3 |
| 09.00 | 343.3 | 22,097.5 |
| 10.00 | 352.7 | 25,764.8 |
| 11.00 | 333.1 | 25,598.2 |
| 12.00 | 310.4 | 22,336.9 |
| 13.00 | 315.6 | 24,190.7 |
| 14.00 | 299.4 | 18,220.4 |
| 15.00 | 316.0 | 21,418.1 |
| 16.00 | 328.0 | 17,032.6 |
| 17.00 | 308.4 | 20,831.2 |
In order to put a comparison, measurements are also made within a space that does not apply double skin façade and instead only uses conventional glass material (Figure 10); the light intensity appears to be lower than if the double skin façade is not applied.
Table 1 shows light intensity differences between a room protected by a double skin façade as oppose to a room that does not apply a double skin façade; the value of natural light levels for the former is 352.7 – 25764.8 lux, whilst the latter has the value between 713 lux – 42026.1 lux, the value differences between the two rooms are stark – almost 50% in margin. This result is in accordace to a theory presented by Sabrina Barbosa who is optimistic that DSF is a good enough choice; the results of an optimized case study model shows that the incorporation of DSF is able to achieve about 70% comfort level during peak hours [2].
After obtaining the test results of light intensity received by the room, the discussion continues on by bringing forth the results of the indoor thermal load test to see and draw conclusions on the effects of using electrochromic glass.
Results of Measurement of Thermal Load on Conventional Glass
| Time | Building type | Room type | Area | Material | Cooling Load | Heating Load |
|---|---|---|---|---|---|---|
| Sunday, Dec 13, 2020, 13.00 | University | Room class | 45 m2 | Clear Glass | 3,122 W | −38 W |
Based on the results obtained as shown in table 5, the results of thermal testing using conventional glass show a cooling load of 3.122 W, with a heating load of −38 W, which gives off the conclusion that the room would require more heat energy that to be expended if ideal indoor temperature were to be achieved, consequently requiring more cooling force(s) to achieve ideal room temperature.
Results of Measurement of Thermal Load with Electrochromic Glass
| Time | Building type | Room type | Area | Material | Cooling Load | Heating Load |
|---|---|---|---|---|---|---|
| Sunday, Dec 13, 2020, 13.00 | University | Room class | 45 m2 | Electrocromic glass, type sageglass climplus classicSR20 (Dark Tint) | 2,289 W | −2 W |
Next, testing is carried out with the use of electrochromic glass type sageglass climaplus classic SR20 (dark tint). In Table 4, the results of the total cooling load decrease down to 2.289 W, with the heating load dropping to −2 W and it can be concluded that the reduction of heat energy within the space has been successfully accomplished with the use of electrochromic glass.
The possibility of using electrochromic glass with hardware has been demonstrated in this paper. Three commercially available technologies in the field of window intelligence have been reviewed. The strengths and weaknesses of this technology have been presented in depth. The potential applications of this technology for evolution have been described. Further efforts will be focused in two directions:
Implementing the proposed hardware,
Finding a new software more suitable for smart glass models [9]
These results also prove a theory in a journal written by Marco Casini [5], where in his research he provides a statement that there is a decrease in summer and winter air conditioning (HVAC) thanks to the ability of electrochromic glass to control heat from solar radiation with the consequence of reducing energy costs spent on management and installation, and buildings have the possibility of switching to less power (up to 25% less power required) [10].
The thermal transmission of windows is a key factor to the amount of energy spent for heating and cooling spaces. As a result, significant effort has been made to make windows more insulated and reflect heat while maintaining visual clarity. The energy star label on the new window listing details such as the Solar Heat Gain Coefficients (SGHC), divided by incoming solar heat, result in the SHGC value of 0.55 for cold weather climates.
Visual Transmission (VT) measures the ratio of visible light in comparison to visible incident light. The VT value of > 0.60 is required to ensure that the glass looks clear enough (the best Transparent OLED screens currently have a VT of 0.40); crystal clear glass has a VT of 0.90.
The increased energy rating is given in several ways in an insulated glass unit (IGU) for example: Increasing the number of layers of glass can improve insulation and reduce condensation at cold temperatures [11]. Wooden frames relatively serve as good insulator but are prone to rot; frame rotting is the most common form of window failure.
Low emissivity materials increase the amount of radiation heat sources that are reflected. Modern smart windows have enabled computer controls, their functions in full effect for when windows and blinds are open.
A window PDLC has a SHGC of 0.71 and a VT of 0.81 if it is clear, and a SHGC of 0.10 and a VT of 0.10 if it is frosted. While electrochromic windows typically seen on airplanes have a SHGC of 0.48 VT 0.62 if clear and a SHGC of 0.09 and a VT of 0.04 if tinted, this theory can be correlated with the results of the OTTV calculations carried out. [12]
The calculation of the building envelope is also performed, to see the benchmark of success of the application of electrochromic glass in terms of comfort.
Glass material settings are applied in the Window software to seek out the U-Value and Shading Coefficient of a covering material; after the OTTV calculation is carried out from the required variables such as: glass area, glass U-value, and (observed) building orientation, the partial OTTV calculation for the southern part results in 34,3740 W/m2.
Penetration of sunlight into the building significantly affects room temperature even though the building uses heat and solar resistant glass. The increase of heat within a building is inherently consequential to the rate of transmission, reflection and absorption power of the glass, with absorption being the most important factor in reducing the rate of heat transfer to the building. The higher the absorption rate, the less heat can be transferred through the glass into the building [13].
This theory has been proven with the results of the calculation of both OTTV and thermal load, specifically through building simulation which applies electrochromic glass type sageglass climaplus classic SR20 (dark tint) (see Figure 12); this particular glass type possesses high absorption value, so that heat transfer into the building can be reduced and thus, results in thermal comfort within the space while still maintaining sun intensity that qualifies universal standards [14].
From the results of simulations and calculations using the Revit software, it is known that the use of double skin facades and electrochromic glass in buildings in tropical climates can effectively withstand excess sunlight intensity. The use of double skin facades can still produce sufficient lighting levels in accordance with those recommended for study rooms.
As shown in Table 1, the average measurement result for a room with a double skin faade installed is 300 lux, while the standard set by SNI (Indonesian National Standard) ranges from 250 lux to 500 lux.
It is clear that a room that is not protected by a double skin faade is more susceptible to receiving intense sunlight which increases the temperature in the room. This condition should be avoided in the tropics. To achieve thermal comfort, the room temperature is not allowed to be too high.
Table 2 shows the difference in light intensity between the room protected by the double skin facade and the room without it; the value of natural light levels is between 352.7–25764.8 lux, and without the double skin faade the value is between 713–42026.1 lux – making the difference of almost 50% when the conditions of the two rooms are compared.
The position of the double skin applied to the facade of the building which is located in the southern part of the building has proven to be appropriate, which answers research problems regarding the most appropriate placement for the double skin in order to effectively protect the building from excessive sun intensity throughout the day or, in the long term, as long as the building is still in use.
With the research results obtained through the simulation, this research is proven to be factually correct and effective in reducing excess light intensity and discomfort in the room.
The final result of the calculation of the South side partial OTTV with the electrochromic glass material applied is 34.37 W/m2. SNI (Indonesian National Standard) regarding the ideal maximum OTTV limit was revised in 2011 SNI 03-6389-2011, the change is to revise the maximum OTTV value to 35 W/m2, so that based on the established standards, it can be concluded that the room quality is ideal with the implementation of electrochromic glass material. A building in the tropics can use glass material without sacrificing the comfort factor, if the application is done correctly and done with the right calculations. The selection of materials, types of glass, and the location of the application of glass materials are the keys to the successful application of glass materials in buildings in the tropics in order to produce optimal building performance in accordance with the function of the building. From the results of the analysis, it is concluded that the use of conventional glass in the tropics should be avoided because the sun's heat entering the building will increase the temperature which is highly avoided in the hot tropics. The use of electrochromic glass is a proposal for architectural design, because it is able to withstand the rate of heat.