The influence of ventilation on the development of fire is widely known. Without the air, the fire will stop developing and maybe even extinguishing of the fire takes place. A sudden supply of a large amount of air, for example, by opening the door or falling out of the windows, may cause a re-igniting of a fading fire. Under certain conditions, it can even create a backdraught, a very dangerous phenomenon for people’s lives. The influence of ventilation on the fire development in the compartment has already been considered. The literature studies show the dependence of size of the area of ventilation openings on the fire power [1]. Research has been carried out by Sikanen, on the effects of ventilation on the power of fire and the rate of its extinguishing. These analyses concerned the mechanically ventilated room. In this research, first of all the detailed model of liquid evaporation in the Fire Dynamics Simulator (FDS) was investigated to predict the pool fire burning rates in a compartment fire [2]. The influence of ventilation on fire development was also tested experimentally. A heptane pool fires were investigated in a small-scale 40 cm cubic compartment with wall vents at the ceiling (top vent) and the floor (bottom vent). It was shown that extinction depends on fire power as well as on oxygen concentration [3]. Very similar investigations were made by Loo. He did the research in a reduced-scale fire compartment with controlled ventilation. Temperatures at different heights of the compartment, oxygen and carbon monoxide concentration, fuel-mass-loss rate, inner pressure and ventilation rate were measured. It is shown that the fuel-mass-loss rates are reduced in controlled ventilation conditions compared to free-burning cases [4].
These issues are increasingly being considered numerically. Harish showed that a ceiling vent location is the most important parameter for growth and spreading of the fire plume. Also the volume flow rates through the two ceiling vents showed a significant variation depending on the location of vent [5]. When research fire extinguishing is examined, two parameters seem to have a prevailing impact. The first is the size of the vents and the second is the heat release rate [6]. CFD programs are used in issues related to fire in a compartment and in general fire engineering. Most often, scientists use the Fire Dynamic Simulator program and the Ansys Fluent program [7, 8, 9].
The paper presents numerical considerations regarding the development of a fire in a compartment with controlled ventilation. The influence of the openings size and their location on the fire development was shown. The Ansys Fluent program was used in the analyses.
The development of a fire in a closed room is a very dangerous phenomenon. Its growth depends on the amount of fuel and oxygen availability. The fires limited by ventilation or limited by fuel can be distinguished here. In buildings, the ventilation limited fire are the biggest threats. The fire that develops in the room needs a constant supply of air. If the air is unrestricted, the fire develops freely and a fully developed fire occurs. It is a state when everything flammable in the neighborhood is burning and the fire gases are self-igniting. This is just the flashover phenomenon. Most often, however, the fire developing in the compartment has limited supply of air. Then the fire ceases to develop, unless enough temperature is reached to windows fall out. If not, the rate of fire development decreases and unburnt products of pyrolysis occur in the room. Such conditions in the room pose a great threat to people. The fire becomes an under-ventilated fire. Then there is the possibility of back-draught phenomenon occurrence. The phenomenon involves the instant deflagration of partial combustion products and unburnt pyrolysis products in a consequence of incidental fresh air supply. This can happen when the door is opened suddenly.
Maintaining a constant, small air supply to the room will cause combustion to be sustained. The continuous supply of air to the room can be carried out by properly functioning natural ventilation. The air supply can also be provided by an unclosed window.
The development of fire controlled by ventilation is characterized by incomplete combustion of fuel. As a result, large amounts of unburned substances, e.g. carbon monoxide, appear in the room. For fires developed in room with a single opening, the fire power can be determined [10, 11]:
Q ‒ heat release rate of a fully developed fire [kW],
Aw – area of ventilation opening [m2],
Hw – height of ventilation opening [m].
If there is more than one opening in the room, but all have a lower and upper edge at the same height, then Aw can be given as the sum of their surface. Analytical determination of the temperature in the room in which the fire develops is difficult. Numerical models should be used for this purpose.
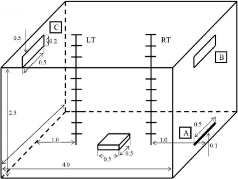
Using the Ansys Fluent environment, a model of the room with developing fire was built. Methane is burned, which is continuously delivered to the room with a capacity of 0.00125 kg/s, corresponding to a fire power of 69.4 kW. This power is comparable with the power of burning of small furniture in the apartment (cabinet, armchair) [1]. The room had a square shape with a side of 4 m in length and was 2.5 m high (Figure 1). The methane emitting source was located in the middle of the room and had dimensions of 0.5 per 0.5 m. The room was equipped with three openings through which air was supplied. One opening with an area of 0.01 m2 (0.02 × 0.5) was located at a height of 0.1 m above the floor. The other two, with an area of 0.1 m2 (0.2 × 0.5) each, were on the opposite walls at a height of 0.5 m from the ceiling.

Figure of the analyzed room
Three cases were analyzed (Table 1). In the first one, the air was supplied only through the bottom opening, in the second one through the lower opening and one upper opening and in the third through all three. Each time, the temperature was recorded in two trees arranged symmetrically in relation to the fire source. In addition, concentrations of oxygen, carbon dioxide and water vapor were recorded at the same places. The measuring trees were located at a distance of 1 m from the walls with openings, in the axis of the fire source. Temperature recording took place every 0.25 m, and concentrations every 0.5 m.
Considered cases
| Air inlet | |
| Case 1 | inlet A |
| Case 2 | inlet A, B |
| Case 3 | inlet A, B, C |
The process of combustion which includes chemical reactions between the components of the fuel and the oxidant with the formation of various intermediate and final products and the release of large amounts of energy is a very complex phenomenon. This is why some simplifications and pre-assumptions are required, such approach allow for focusing on conditions inside the object in fire, paying less attention to details of combustion process. There are two fire models available when using Ansys Fluent software [12]:
-
–
Species transport, where the fire is modeled as a source emitting preliminarily defined combustion products. The mass flow rate and temperature of emitted species are adjusted to fit the required fire heat release rate (HRR). This model requires solving the additional transport equations for each species taken into account. This approach does not take into account details of combustion chemistry, thus it is unable to model the fire development under the conditions of decreasing amount of oxygen. It could be partially corrected by the use of variable mass flow rate and temperature, which can be implemented by an UDF (User Defined Function).
-
–
Non-premixed combustion – with the main assumption that chemical reactions of combustion take place very quickly, thus they can be regarded as immediate comparing with the flows of all considered chemical compounds. Under such assumption the combustion products (intermediate or final) and released heat depend only on local composition of gases mixture and its temperature. To speed up the calculations, a data base called PDF table is prepared at the first stage of calculations. A PDF table contains quite just the predefined data needed for quick determination of details of local combustion. This model requires also solving the additional transport equations for each element of PDF table. One more equation must be solved too: the scalar quantity called mixture fraction (f) must be considened:
(2) Z i denotes the mass fraction of i-th chemical compound, subscripts describe from where it is originating. If the diffusion coefficients for all species are equal the value of f is the same for all of them. This model could be also enhanced by the use of an UDF to simulate burning out of fuel or variability of fuel mass flow rate dependence on temperature. Optionally it is possible to model soot generation.
An important mode of heat transport is radiation. There are three radiation models available in Ansys Fluent:
-
–
P1 – for optically dense fluids, takes into account absorption.
-
–
S2S – describing mainly the radial exchange between solid surfaces, omitting the absorption.
-
–
DO – the most accurate, takes into account all processes, but the most computationally complex.
Using Ansys Workbench platform a numerical model of the compartment was built. The symmetry plane feature was used and it allowed to diminish the computational complexity (Figure 2).

Numerical mesh (symmetry plane visible)
The numerical model was solved with the use of Ansys Fluent. All the openings were modeled as pressure-outlets. To reproduce the decrease of the atmospheric pressure with the height the relative static pressure was applied using UDF, which implements the formula:
The walls were assumed to be of concrete and their thickness was equal to 0.5.
The numerical mesh contains 79496 cells and 83109 nodes. It was prepared using cut-cell assembly method, what ensured almost regular grid. There was a more dense mesh in the region above the fire source and in the vicinity of inlets. For better reproducing the flows near walls 5 inflation layers at boundaries were added (Fig. 2). The minimal orthogonal quality is 0.146, while the minimal recommended value is 0.1. The mesh sensitivity of the model was preliminarily tested and it proved, there was no need to use the more dense meshes. Table 2 contains a summary of the numerical model.
Numerical model summary
| Feature | Value | |
|---|---|---|
| Turbulence model | k-omega SST | |
| Combustion model | Non-premixed combustion | |
| Fuel | Methane (CH4) | |
| Fluid material | Mixture (according to PDF table, ideal gas) | |
| Operating pressure | 10325 Pa | |
| Temperature | 288 K | |
| Gravitational acceleration | 9.81 m/s2 | |
| Solver | Pressure based | |
| Calculation mode | Transient | |
| Pressure / velocity coupling | Simple | |
| Under-relaxation factors | Pressure | 0.3 |
| Momentum | 0.2 | |
| Energy | 1.0 | |
| Others | Default | |
| Calculation mode | Transient | |
| Time step | Adaptive (0.001 – 0.6 s) |
In first stage of research the influence of assumed radiation model on the results was examined. Because the fire was modeled as combustion of methane the amount of soot produced was negligible. Thus there was no need to take into account the absorption and the S2S radiation model was preliminary adopted. The calculations were done for Case 1 in two variants: without any radiation model and with the S2S model taken into account. The results are shown in Figures 3 and 4 as comparison of distributions of temperature and mass concentration of CO2 in two time moments.

Temperature distribution at two time moments for Case1

Mass fraction of CO2 distribution at two time moments for Case1
As it can be seen the presented distributions are not the same, but the differences are not too significant. The same conclusions can be drawn from other compared data (O2 and H2O mass concentration distributions and when comparing other time moments), therefore the successive calculations were carried out with the radiation model switched off. It allowed for significant time saving.
Oxygen is needed in the room volume to sustain the combustion of methane. Oxygen is then consumed in the combustion process. If it is not supplied, the fire will go out. Figure 5 shows the differences in the oxygen concentrations in the room at two time moments (practically at the beginning of the combustion process and for fully developed fire). During the combustion process, the oxygen concentration decay is the fastest in the Case 1, where there is only one vent in the room.

Distribution of mass fraction of O2 at two time moments for three Cases [kg/kg]
In the Case 1 the concentration of CO2 was obviously growing fastest, what can be seen in Figure 6. But unlike for other cases there is a layer depleted in CO2 just over the floor – it is a result of weak mixing.

Distribution of mass fraction of CO2 at two time moments for three Cases [kg/kg]

Distribution of temperature at two time moments for three Cases [K]
Case 2 is also worth paying attention. In this example, there are two openings, one narrow at the bottom (A) and the other larger (B) at the top of the same wall. When analyzing both oxygen concentration and carbon dioxide concentration one could realize that these distributions were stable. Thin layer depleted in CO2 is also visible in Case 3 – it is a result of inflowing cold air.
As was expected, the highest temperatures were recorded in Case 1. It was so because no fresh cold air flowed in. However, calculations eventually showed a continued decrease of the temperature due to the extinction of the fire caused by a lack of oxygen. It is worth to pay attention to the temperature stratification in the Case 3. In that Case the air is supplied through the bottom opening (A) and the hot gases are exhausted by means of the top openings (B) and (C). Supplying air by the bottom opening (A) in Case 3 causes the flame to bend to the right. It can be seen in all the figures. This shows the classic situation of fire ventilation in the room.
Figure 8 shows the distribution of air velocity vectors. The circulation of the air and the smoke in the compartment is very well visible. The distributions of velocity vectors for Cases 1 and 2 are similar. In the Case 2, the flows are more intense. In both Cases, air and hot gases are exhausted through all openings. Only in the case 3 the outside air is supplied by the bottom hole. The hot air and combustion products are exhausted by the both top openings.

Distribution of air velocity vectors at two time moments for three Cases [m/s]
Figure 9 shows the change of O2 concentrations in time. In the upper part of the compartment (at the height of 2.0 m), the concentration of O2 was quickly decreasing. The decrease of O2 concentration was the fastest for Case 1.

Variability in time of mass fraction of O2 at the height of 2.0 m (left tree).
The volume flow rate through the bottom opening can be seen in Figure 10. The minus sign means that the gases were flowing out of the compartment. Only for Case 3, the air was supplied into the compartment all the time. In Case 1, expanding hot gases are exhausted from the compartment through the bottom opening. However, the volume flow rate of out flowing gases decreases. This is caused by the fact that no fresh air was supplied to the compartment and the fire gradually dims.

Variability in time of volume flow rate through vent A
In all the cases which were analyzed, the temperature increased with time, and was higher in the upper part of the compartment (Figure 11). Again, it can be observed that the temperature increased the fastest in Case 1.

Variability in time of temperature [K] at the height of 0.5 andw 2.0 m (left tree)
Numerical analyzes of the conditions in the compartment in which the fire is developing were performed. The variable number of ventilation openings was examined. In Cases 1 and 2, the total area of the openings was too small for the fire to develop freely. The oxygen began to run out and the fire was fading. In the Case 3, the air was supplied into the compartment through the bottom opening and hot smoke was exhausted through the upper openings. It allowed for sustaining the combustion process and it resulted in lowest temperatures and highest concentration of oxygen inside.
The important issue being out of scope of presented work was pressure distribution inside the compartment. It will be a subject for further work. The over-pressure can reach values over 100 Pa and under pressure can reach values of order of tens of Pa [13]. This could cause additional threat for instance by hindering the door opening. Such significant pressure variability can be observed especially for Case 1: the pressure violently rose in the first phase of fire and then dropped when the fire was suppressed due to lack of oxygen. This can be confirmed by observing the variability in time of the outflow rate. The situation for Cases 2 and 3 was different: due to supply of fresh air the pressure distribution seemed to be stable in time. Additionally the pressure did not take so high values.
The results of numerical analyzes can be referred to the conditions prevailing in the compartment with natural ventilation in which the fire develops. The three cases analyzed correspond to the conditions prevailing in a room with three different tightnesses. The development of a fire in an unventilated room leads to extremely dangerous conditions in it. A sudden inflow of air into the room by, for example, opening the door could result in a backdraught. This phenomenon is a huge threat to people. The conditions inside strongly depend on material being burned and its distribution and quantity, what can result in unpredictable fire power and different combustion products.